玄关|温暖,是对一个家最好的诠释!她家80㎡,清爽自然,太舒服了!
我们每个人都憧憬着、描绘着对于一个家的想象。家,虽然简单的一个字,但却是千千万万个漂泊的灵魂一直在寻觅追寻的。对于家的憧憬每一个人都会不同。这次要给大家分享的就是典型的充满氛围感的原木风之家。本案的关键词是:温暖。在当今社会,我们的工作压力越来越大,对于家的要求也越来越高。当下班回到家那一刻,我们希望可以远离城市的钢筋水泥,打开家门,迎接我们的是一个自然舒适、清爽的家。这样的居家氛围,可以让人释放压力、更加惬意自在。#百度家居大师团#
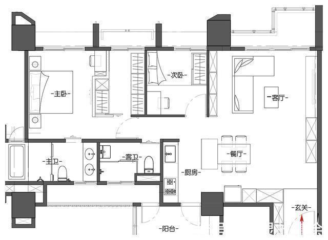
本期案例分享的就是一个温馨原木风格的装修。它有着自然北欧风的清新氛围,又有着原木风的温暖质朴,打造出纯粹、令人完全放松的居家氛围感。话不多说,快跟随小编的步伐,一起来看看吧。房屋基本信息本案例户型2房2厅2卫,套内面积约为82㎡,居住人数为4口之家,2大2小。
▲平面布置图这个房子的整体格局较为规整,进门后是独立的玄关区,然后依次是餐厅、客厅,厨房空间完全打开,增设了岛台,这样设计可以拥有更为流畅自如的家居动线。空间分布上,屋主只保留了两间卧室,主卧增加了衣帽间。值得一提的是,屋主规划了两个大卫生间,这种方式对于提高生活品质来讲,是非常必要的。玄关
▲从玄关望向客厅推门入室,玄关根据地面材质的不同进行了有效的功能区域划分。左手边是整排的原木色收纳柜,局部适当留空作为置物平台使用。从玄关望向客厅,地面也采用了大面积与家具同色系的原木色,一进家门,就可以感受到无比温暖的居家氛围。
▲从客厅望向玄关玄关柜依据墙体结构转折至餐厅位置,完美接续灰色系的餐边柜,整体视觉效果平整,还尽可能增加了收纳空间。客餐厅
一个干净整洁的家,很难让人不喜欢。清爽百搭的灰色系墙面、灰色系沙发,搭配温暖的原木色地板、原木色家具,天花板还增设了灯带烘托气氛,这样的家,不仅温馨耐看,住在里面的人心情也会无比舒畅吧。

整个屋子没有任何繁琐复杂的装饰造型,一切以实用性为主。配色上,以大面积的白色为底,辅以大面积的浅木色,显得家非常的温暖。营造出一种轻快、慵懒、与世无争远离喧嚣的温馨感。
【 玄关|温暖,是对一个家最好的诠释!她家80㎡,清爽自然,太舒服了!】
从这个角度可以看到,公共区域通过柜体颜色的不同来划分功能区域,餐厅的餐边柜以及厨房的橱柜都采用了清浅的灰色系,其他柜体都是原木色,通过软性的方式来划分,显得空间更加自然、宽敞。
电视柜也是兼顾了实用性,右侧规划了两组对开门高柜,增加收纳空间。底部悬空的设计,可以减轻柜体的体量感,营造更加轻松、通透的居家环境。
推荐阅读
- 地板|160㎡四居室,玄关比我家卧室都大,这才是真正的低调奢华有内涵
- 她家148平米,进门就被玄关迷住,不做吊顶跟背景墙,阳台超漂亮
- 薄荷蓝|走进她家,才知什么叫美观与实用并存,全屋温暖又清爽,太舒服了
- 鞋柜|我家无玄关的玄关设计超赞!左邻右舍来参观,看完都要回家照着装
- 玄关柜|房子再小也要把这7个地方装上柜子!比多买一间房都值!
- 柜子|入户玄关这样设计,进门就是惊艳!储物功能超多,美观大气上档次
- 摄像师|日本单身宅男9㎡小家,厕所巴掌大却有浴缸,玄关晾衣服格外整洁
- 玄关|设计主题和风格的折中混合,造就充满独特空间的家
- |参观精装楼盘样板间,三居都市轻奢范儿,玄关柜墙太惊艳了
- 异形|141㎡二手房改造,这样如秋般温暖的家,太舒适了
