本案|装修案例|木色、和风、轻奢、未来科技感,家居时尚一直很多样!( 三 )
关于本案设计师 江焕文 峰格荟(厦门)装修设计有限公司设计总监/创始人深圳市福田区建筑装饰设计顾问国际商业美术设计师° 2019年第九届中国国际空间设计大赛中国建筑装饰设计 (餐饮空间工程类)金奖° 2019年中国十佳家装设计师° 2018年第八届中国国际空间设计大赛中国建筑装饰设计 ( 商品房、样板房空间/方案)银奖05 现代/简约 非传统日料店
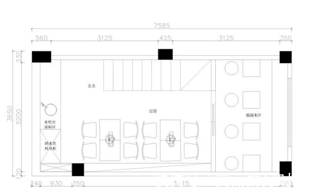
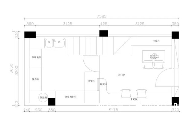
项目名称:小春禾日料店设计师:许智超

本案面积不大,设计师给原本空间的限制赋予了另一层韵味:曲径窄巷之中 ,穿过窄巷,紧接着是豁然开朗的厅堂,明亮开阔的就餐区提供食客舒适的就餐环境。一宽一窄形成鲜明对比,空间富有层次感,灵动而充满变幻,给人以截然不同的感受。

关于本案设计师 许智超 儒般尺装饰设计总监° 第八届中国国际空间设计大赛 银奖° 擅长风格:简约、中式、新中式、现代简约、后现代、轻奢、工业风° 主要案例:鸿源幼儿园,禹州尊海潘公馆,龙泉御墅,天琴湾,湖滨首府,中铁元湾,翠湖庄园,顶峰鹭江一号,吕岭社区,百鱼百味餐厅-END-
推荐阅读
- 装修|乔迁新房3月以泪洗面!当初的不理智,连犯15个极品装修坑!作孽
- 装修|淋浴房还可以坐着洗澡,一开始很不理解,装修后才发现太实用了!
- 施工者|不管家多大,装修时做好这12处细节,美观与舒适并存,幸福感提升
- 心塞|5个月装修一套房,硬装让我喜出望外,结果家具一上全废了!心塞
- 装修|空调外机万万不能这样挂墙,若不是师傅提醒,我家都装错了!
- 洗头|崩溃现场:装修的10条坑,我都替你踩扁了,请你一定要避开
- 抽油烟机|婆婆抠出新境界,5万装修婚房还带家电,如此寒酸真让人不想嫁了
- 房子|越来越多人用这“两个方法”装修房子,可升值十几万!
- 卫生间|房屋装修6大暗坑,哪个踩了都会导致返工,希望你没踩到。
- 木纹板|装修案例欣赏:小北欧风格的居家设计,简洁的同时又不失温馨感!
