本案|装修案例|木色、和风、轻奢、未来科技感,家居时尚一直很多样!( 二 )

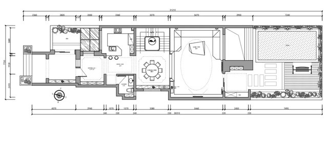
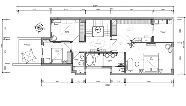
项目名称:中航城别墅建筑面积:560㎡主要材料:地坪漆,木地板、整木,不锈钢、玻璃设计师:龚赞欣


现代风格注重居室空间的布局与使用功能的完美结合,当主流的现代风遇上非主流的科技风空间是什么样的?本案带大家一睹为快!


明亮的白色基调搭配黑白灰点缀+硬朗的几何切割,科技感立显。设计师敢于突破,重视功能和空间组织,注意发挥结构构成本身的形式美,造型简洁,摒弃了多余的装饰,尝试了非传统的以功能布局为依据的不对称的构图手法,让空间充满了想象力。

关于本案设计师龚赞欣 简尚空间设计机构设计总监° 2019年荣获吉家杯厦门晚报尚居汇厦门室内设计年度评选 美居奖° 2018年荣获中国国际设计周设计50强、厦门室内设计师诚信设计师° 2017年荣获吉家杯厦门晚报尚居汇厦门室内设计年度评选 美居奖° 2016年荣获厦门晚报尚居汇首开‘褐石墅’精装设计大赛美居奖° 2015年荣获海西室内装饰设计优秀设计师奖04 日式/北欧混搭 极简又温馨的家
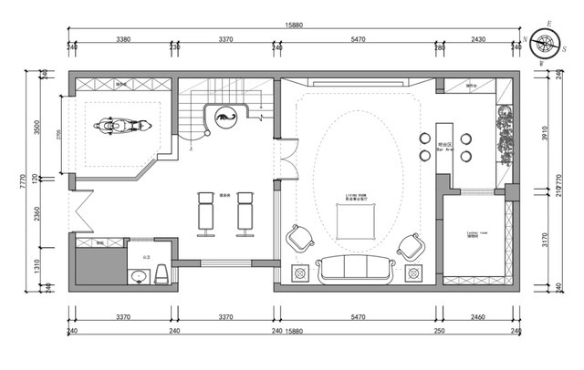
项目名称:海峡国际社区建筑面积:140㎡主要材料:木制品、大理石、木地板、线性灯、艺术涂料、墙板、布艺窗帘设计师:江焕文

原始结构vs设计师规划本案为户型改造案例,设计以业主喜欢的日式主调,再融合一些北欧的小元素来打造整体空间。以原木色和白色为主色调,搭配米色、灰色调的家具、软装,使空间平和理性而不失温度。原户型业主认为整个空间没有亮点,私人空间缺乏私密性。设计师拿到案子后进行了如下调整:①进门正面增加造型隔断背景墙以增空间私密感,侧面的白色储物柜弱化其存在感达到增加储物空间的目的。②公卫采用日本流行的三分离设计,提高空间利用率和生活效率。

公共空间是由客厅、餐厅和休闲区(童玩区)组成一个大空间。客、餐厅以一堵隔而不断的造型为界,视觉、光线通透,摒弃传统电视+电视柜的组合改用收放自如的投影幕,使空间达到最大化。

主卧室采用无主灯+内嵌灯带设计+原木色墙板,突出原木的呼吸感,不刻意精致,不过度装饰,与最爱的人窝在一起,就是最幸福的日常。
推荐阅读
- 装修|乔迁新房3月以泪洗面!当初的不理智,连犯15个极品装修坑!作孽
- 装修|淋浴房还可以坐着洗澡,一开始很不理解,装修后才发现太实用了!
- 施工者|不管家多大,装修时做好这12处细节,美观与舒适并存,幸福感提升
- 心塞|5个月装修一套房,硬装让我喜出望外,结果家具一上全废了!心塞
- 装修|空调外机万万不能这样挂墙,若不是师傅提醒,我家都装错了!
- 洗头|崩溃现场:装修的10条坑,我都替你踩扁了,请你一定要避开
- 抽油烟机|婆婆抠出新境界,5万装修婚房还带家电,如此寒酸真让人不想嫁了
- 房子|越来越多人用这“两个方法”装修房子,可升值十几万!
- 卫生间|房屋装修6大暗坑,哪个踩了都会导致返工,希望你没踩到。
- 木纹板|装修案例欣赏:小北欧风格的居家设计,简洁的同时又不失温馨感!
