豪宅范|62平两居室,全屋高级灰,装出“豪宅范”!太漂亮了!忍不住晒晒
整体装修非常不错。比如风格上,选用了现代简约风,这样比较搭配小户型,加上没有繁琐的造型和装饰,因此看起来非常干净利落,特别的适合休息!另外,房子的配色也是一大亮点,全屋用高级灰,因此装修看起来非常的时尚整洁,简直就是装出了“豪宅范”,实在是太漂亮了!就忍不住晒晒!不过,需要注意的是,虽然高级灰是一种中性色,但看起来还是有点暗沉,为了解决这个问题,业主就在卧室安装了轨道门,由于门洞尺寸大,房门拉开的时候,全屋就保持了极为通透的效果,不仅敞亮,看着也很是大气,可以说太有创意了也不为过。好了,废话也不多说,我们还是看一看实景效果吧。
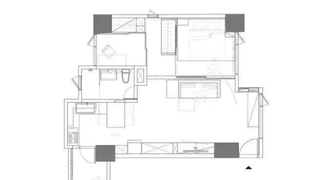
首先,这个是房子的平面布局图,可以看到户型坐北朝南,中规中矩,也还算不错。
接着是实景。入户进来后就是客厅,且视线对着沙发墙,整体效果还不错,全屋高级灰的配色看着非常有质感。左边是沙发,也是灰色的布艺款式,坐在上面极为柔软舒适。
另一面,对面的窗户可以看到原木的矮柜,其实那里就是玄关的过道空间,有两扇窗户,因此采光和视野还不错。其中,这个沙发有些特别,靠背是包围着长条木凳,既可以坐人,也可以置物,同时也能有效防止和卧室的移门发生摩擦。而这里的重点就是卧室门,采用了由三扇门组成的轨道门作为背景墙,这样整个房屋更显通透。
这里则是电视墙,为了提高空间利用率,分为了两个部分,左边专门用来看电视,因此结构并不繁杂。而右边则是用来收纳的储物柜,进而满足整个居室的收纳需求。同时,由于靠近餐厅,冰箱也摆放在了这里。
来看一下侧面效果,原本右边是轨道门隔开着的,但是现在给拉了起来,所以能够看到地面的轨道,如此整个房屋的光线汇聚于此,看起来根本就不像是小户型了。
这里是餐厨空间,在设计时把两者融为了一体,比如厨房以开放式结构为主,这样有利于保持通透感以及增强室内各空间的互动性,还不错。而为了提高空间利用率,这里还有一个餐厅式吧台,不管是用来放松休闲,还是享用美食,都极为方便。另外,右边还可以看到卫生间一角。
现在来到主卧。这里的效果非常干净利落,全屋都是水泥质感的高级灰,非常适合休息。至于卧室床,做了是榻榻米地台,相当于一个小抬高,睡觉还是挺方便的。
这里则是衣柜,木质的推拉门和整个风格保持了和谐统一,看起来就像融为了一体,效果很大方。
再一个就是走廊过道了,可以看到斜对面的双叶轨道门,推拉开来就是本案的书房效果了。
最后,我们可以试着把整个卧室的轨道门拉开,可以发现所有空间几乎像是打通了一般,非常的敞亮大方,也有利于室内通风,效果不错。
推荐阅读
- 出售|梅西挂牌出售美国豪宅 2年时间增值200万美元
- 客厅|参观向华强和陈岚的豪宅,房子层高太矮了,住着不压抑吗
- 卫生间|129平现代美式三居室,打造出一个舒适又温馨的美式家
- 三居室|118平现代风三居室,一个简单而纯粹还原生活色彩的家
- 限购|哈市125家房企将列入重点监管范围,详细名单→
- 郑州|买房月供曝光!郑州最新平均工资8694元,撑得起房贷么?
- 成都|双限当道的2022年,成都还有这些豪宅新面孔
- 石家庄|144平的面积,无人值守棋牌室,这是如何做到的?
- 别墅|参观亲戚上海的豪宅,别墅硬是住成农村房,真是糟蹋了好房子
- 简单感|现实的平衡取舍,才是生活之道!143平现代风格设计欣赏!
