地台床|别看她家只是62㎡的小两房,居住体验棒极了,敞亮清爽越看越舒服
本期为大家分享的是一套使用面积为62平米的刚需小两房的装修案例,你别看它面积小,居住体验可是一点都不输人家8.90平米的大房子,空间开阔敞亮,视觉清爽漂亮,储物又充足,只要保养得当,屋况不太差,我觉得住个十来年完全不成问题,既不用担心会过时,家庭过日子所需要的各种功能也一应俱全,真可谓是好看又好住了!
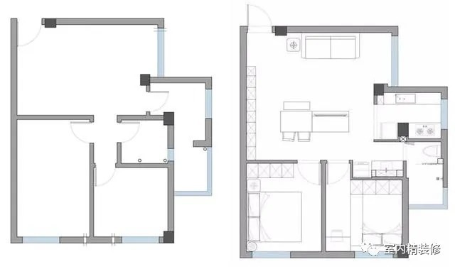
事实上,这套房子不仅小,原始格局也不太理想。它是客厅东西向,俩卧室朝南的,这样的户型,有人喜欢,有人不喜欢,但客观的说,它确实存在不少不尽如人意之处。比如客餐厅这边,电视背景墙就不太好设置,主卧与卫生间门对门,也有些犯忌讳,厨房和卫生间都太小,也不符合屋主对家的期待。
原始户型图&平面面
广州买房不易,屋主希望这套房子,能让他们住得尽量长久一些,不想图一时的好看或是便利,弄到以后看又不顺眼,用又不顺手,住又不顺心。
于是,设计师针对屋主所提及的几点要求,对室内格局作了相应的调整:
1,将厨房、生活阳台和卫生间三个空间打通,并重新划分空间,这样调整过后,卫生间就变成了干湿分离式的,原本狭小的厨房也可以安排下双一字形橱柜了,极大地增加了实用性。
2,压缩主卧面积,扩大客餐厅空间,并将主卧门洞移位。
别看只是这么两个操作,但一下子就解决了厨卫太小,没有电视墙和两个门直对的问题。一起来看看实景效果吧!
入户全景效果
这是入户后的全景效果,整个空间看上去非常地开阔敞亮、清新自然。门口没有玄关,但又不想开门就见厅,就在门上装了半截日式门帘,与整体的装修风格完美统一。
玄关收纳区
大门右侧是收纳区,依次安排有换鞋凳、衣帽架、还有一排顶天立地的储物柜,由门口一直延伸到主卧门口,绿白相间的配色,与原木色地板衬在一起,将室内氛围营造得格外地清爽自然。
客厅
主卧墙体后移后,不仅客厅空间显得宽敞了许多,还正好可以利用梁下空间,设计一个半高的电视墙。房梁用白色与绿色粉刷,嵌入一排筒灯,既能削弱视觉上的压迫感,又能营造温馨的氛围,与木质的电视柜搭配得也是恰到好处。沙发背景墙这边,同样采用了这几种色调,一眼望过去,整个空间的色调非常统一。
客厅
半墙电视墙背后,还有一个矮的吧台,既是餐边柜,也是厨房的扩展区。一旁的厨房门洞,特意做了一个拱门的造型,丰富视觉效果的同时,还营造出了仪式感。与此同时,原来的卫生间,现在成了干区与洗衣区,而原来的生活阳台则改作了卫浴区。原本厨房小、卫生间小的问题通通得到了解决,视觉上更是十分地工整有序。
餐厅
餐厅
餐厅
餐厅与电视背景墙并排,两盏北欧风的小吊灯从梁上垂下来,将整个空间衬托得灵动雅致。
推荐阅读
- 床头柜|95后姑娘的“穷装”卧室火了,环保又精致,软装的力量真强大
- 胡润|窗边空荡荡有些浪费,找俩床头柜拼个卡座,“凹”字形挺舒服!
- 全屋|次卧空间小,老婆灵机一动不装“床”,孩子一眼就喜欢上了晒晒
- 床屏|芝华仕沙发质量真的不好吗?是误解?还是真理?大家可以进来讨论讨论这个品牌
- 收纳|床尾墙这个小地方,装修时容易忽视,到底该如何设计呢?
- 海绵|新年新气象,装点美丽新生活!顾家卧室床推荐,建议收藏!
- 迷你|26㎡的迷你复式公寓,一楼装榻榻米房,二楼装地台床,够时尚!
- 地台|丢掉电视柜?电视墙这样设计,很有意思
- 竹炭|换了新的床垫后,深睡时间竟然翻了将近3倍,这床垫换值了
- 床头|越来越多人卧室不放床头柜,瞧瞧人家这么“弄”,比床头柜实用
