别墅|农村两户连体二层别墅,省钱又省力,两家人齐聚一堂
在农村,家里有两个儿子的,盖栋双拼别墅是再适合不过,增加了可利用面积省钱省心,盖出来的房子也大方气派,中国人讲究的是家和万事兴,兄弟俩住的既增进感情有照应,照顾父母也方便。如果是独生子女想盖栋和父母住都是合适的,两户连体,既有公共区域,又有自己的私密空间,还不快看看!
第一套:现代中式二层双拼别墅设计图以及户型图
效果图展示
效果图展示
【 别墅|农村两户连体二层别墅,省钱又省力,两家人齐聚一堂】
效果图展示
这款新农村漂亮的兄弟俩设计图,美观大气,设有独立大门进入,两家住在一起互不影响,适合农村两兄弟建造。俯视图看起来这套户型十分漂亮,两个小老虎窗设计巧妙俏皮可爱,为室内增加采光度。坡屋顶方便排水,不论南方还是北方,都是非常合适建造的。
占地面积:18.6m*12.8m,239平方米左右,单户119.5平方米左右;
建筑高度:12.05米
功能:
一层房屋户型:堂屋、客厅、厨房、餐厅、卫生间、老人房(带卫生间);
二层房屋户型:主卧(带卫生间衣帽间)、卧室(带卫生间)、棋牌室、书房、卫生间、阳台
户型图展示
户型图展示
第二款:欧式二层双拼别墅设计图以及户型图
效果图展示
效果图展示
效果图展示
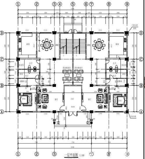
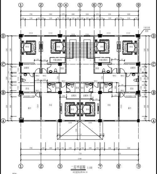
这款门厅共用二层欧式图,适合农村人口多的家庭,尤其是家有两兄弟但宅基地只有一处的情况。看起来只有一栋房子,各个楼层中间用墙面隔开一分为二,兄弟两各住一边,公平公正,互不干扰,住得近又方便交流感情,可谓一举多得。
占地面积:21.6m*15.6m,344平方米左右,单户面积172平方米左右;
建筑层高:二层半(带阁楼);
建筑高度:9.6米(含屋顶);
功能:
一层:共用门厅、客厅、厨房、餐厅、卧室(带衣帽间,卫生间)、卫生间、休闲区;
二层:3卧室(带衣帽间、卫生间)、公卫、书房、露台
户型图展示
户型图展示
第三款:欧式五开间农村双拼别墅设计图以及户型图
效果图展示
农村五开间带堂屋的设计图,共用堂屋,别墅整体给人的感觉是温馨典雅,外立面米黄色外墙漆与浅黄色面砖,加上金色的浮雕点缀,暖暖的色调看着就很温馨,门廊是由米黄色的方形廊柱支撑,与二楼的阳台显得大气恢弘,砖红色的屋顶点亮了整栋别墅,鲜活明亮。后立面大面积玻璃窗,采光无忧。共用大堂屋,非常宽敞透亮,每户一间卧室且近靠公卫,二层每户设有4个卧室和书房,室外共用小阳台!
推荐阅读
- 建房子|面宽11米, 进深16.5米的农村三层别墅, 前后有花院还带车库, 完美!
- 别墅|参观亲戚上海的豪宅,别墅硬是住成农村房,真是糟蹋了好房子
- 购房置业|今年起,农村老家的老房子,统统按照“新规”处理,子女提前知晓
- 修建|精选10套三层户型图纸,占地面积均不足百平,尤其适合新农村修建
- 上海市|2022年农村人要“享福了”?实行按户补贴,跟村民们的房子有关
- 洗衣房|这三款农村四合院设计图让不少城里人羡慕,父母看了也欢喜
- 购房置业|农村建新房就选这套四层别墅,占地100多平,8间卧室人人都有地睡
- 别墅|土豪农村盖大别墅,人人羡慕,如今却成为全村人眼中的大笑料
- 别墅|买不起别墅,买了一楼带30㎡院子的房子,入住两年多,后悔了吗?
- 贵州|利落挺括,12×11米现代二层别墅,4卧2厅好格局开启全新生活
