黑白灰|77平两居室户型,现代简约风,时尚又实用(附平面图)
【 黑白灰|77平两居室户型,现代简约风,时尚又实用(附平面图)】77平两居室户型,现代简约风,时尚又实用(附平面图)
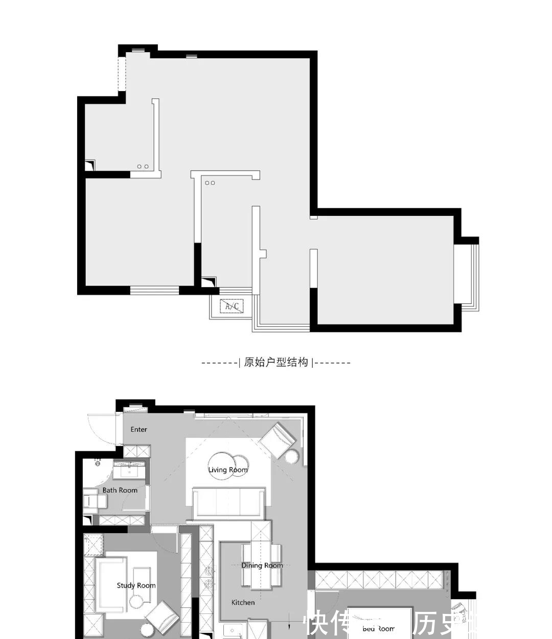
小户型在设计的时候需要注意很多功能上的细节,比如储物空间、家具尺寸、生活流线这些都是需要好好斟酌考虑的;这套77平的两居室设计就比较值得参考,而且最终呈现的效果也比较优秀。

首先玄关很小也很简单,利用凹陷的墙体做一个小薄柜作为鞋柜,日常台面上还可以随手放钥匙之类的;
从玄关进来就直接看到客厅,在视野内做了一个电视背景墙,并不复杂,只是黑白色拼接的护墙板,线条可以增加墙面层次感,电视旁边的凹槽正好作为装饰层板可以放一些小的装饰品;护墙板两头的地方添加灯带作为氛围光源也是十分的有想法;爱马仕橙的单人椅给黑白灰的空间带来的跳远的颜色也带来了生活的趣味;



卫生间的门正对着客厅,自然是要做个美化的,而隐形门就是最好的一种选择,白色的平板门和墙体合二为一,既满足了实用也不影响美观;
客厅的沙发背后便是厨餐厅,开放式厨房和餐厅做成一体式,这样能节省空间并且看上去会宽敞很多,橱柜作为沙发靠背,平常还可以当作吧台,这样增强了客厅和厨房的互动性;

橱柜连接餐桌做成一体,这样餐桌既是餐桌也是厨房的操作台面,用起来很方便,也增加了储物空间;黑白灰的厨房,简约、时尚又大气;

书房也是休息娱乐区,平常还能兼衣帽间,足够的储物柜是一个家的必需品,单人椅和落地灯的配置可以平常看看书或者坐下来听听音乐,都是一种享受;


改动后的主卧增加了一整排的衣柜,这样就可以解决家里的储物问题了,床头背景墙用拼接色的饰面板和护墙板嵌入光源,这样的设计是可以给房间增加浪漫气息的;皮质床头靠背又是满满的时尚感;


推荐阅读
- 卫生间|129平现代美式三居室,打造出一个舒适又温馨的美式家
- 三居室|118平现代风三居室,一个简单而纯粹还原生活色彩的家
- 郑州|买房月供曝光!郑州最新平均工资8694元,撑得起房贷么?
- 石家庄|144平的面积,无人值守棋牌室,这是如何做到的?
- 简单感|现实的平衡取舍,才是生活之道!143平现代风格设计欣赏!
- 她家148平米,进门就被玄关迷住,不做吊顶跟背景墙,阳台超漂亮
- 修建|精选10套三层户型图纸,占地面积均不足百平,尤其适合新农村修建
- 南通|拍卖成功!江苏南通一处197平住宅192万成交!
- 购房置业|农村建新房就选这套四层别墅,占地100多平,8间卧室人人都有地睡
- 现代简约|青岛房价不是低洼地了,房价高达1.6万一平
