效果图|两层新中式别墅,大空间大景观,大气复古、舒适典雅

新中式宅院尺寸面宽18.5米进深43.0米建筑面积555.0㎡易盖房殊舍建筑项目概况
△总平面示意图基地情况:东:邻家住宅西:邻家宅院南:村内道路北:村内道路业主在项目前期仅简单提出了一些关于功能空间方面的需求,对于整体造型则希望尽量做到方正,并表示希望设计师在项目中“自由发挥”。设计师根据业主的需求和喜好,将项目形式确定为南北朝向的宅院,其中主房设计为新中式风格的二层别墅。平面布局户型概况:2层/7室2厅7卫1厨1书房1洗衣1衣帽1车库1锅炉房
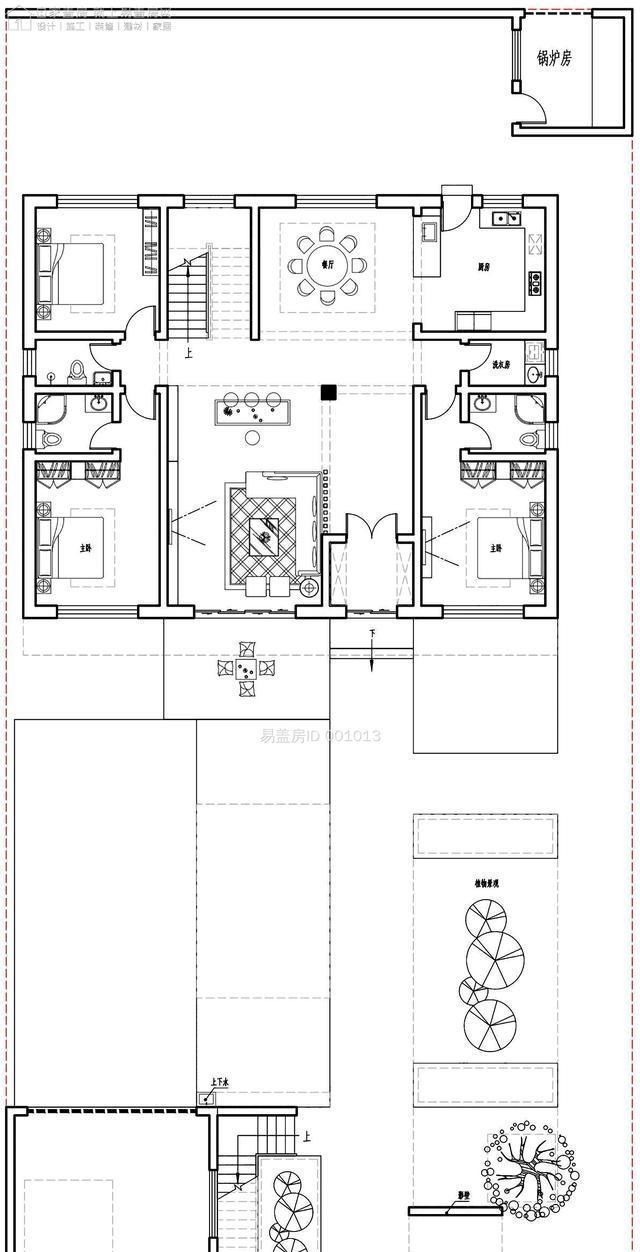
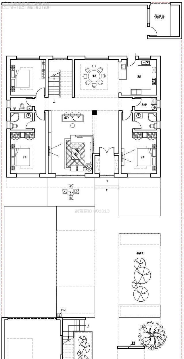
△一层平面图项目整体采用宅院形式,通过主体建筑将庭院划分为南北两部分,南侧庭院门部分设有配房,作为车库以及日常休闲活动或接待亲友使用。主房部分的一层平面布局方正明确,入户空间采用独立玄关,确保冬季室内温度不会过多受到人员进出房屋的影响。一层公共空间部分通透性极佳,开阔的空间可满足各种生活场合需要。
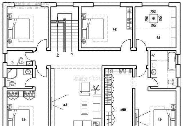
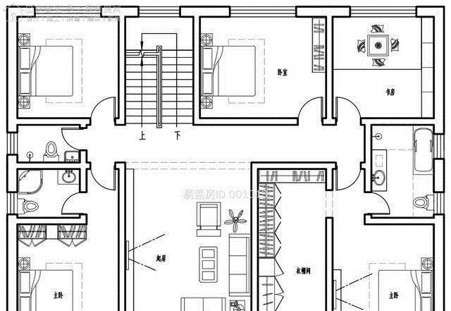
△二层平面图主房二层设置更多卧室作为居住功能补充,同时加入书房、衣帽间功能,大大方便日常使用,起居室的设置也为室内增加了更多休闲活动空间。造型设计
△鸟瞰图
△鸟瞰图建筑整体为新中式风格,房屋的整体体块均十分方正,屋顶部分迎合业主需要,全部设计为种植屋面,从天空俯瞰,建筑将以花园的形式完美融入周边自然环境。△鸟瞰图△院门效果图建筑在外部的观感十分低调,设计师采用白墙和灰瓦的搭配通过线条运用区分院墙空间。车库部分南北通透,大面积的空间可满足房车、小巴等中型汽车的停放需求。
△庭院效果图
△庭院效果图庭院空间从东到西划分为三部分,分别为西侧的硬化地坪活动空间,可供车辆停放或举行庭院烧烤等活动;中间部分为秋千及植物藤架,作为景观和休闲二合一空间;东部则为纯粹的庭院花草树木种植空间。
△庭院效果图
△鸟瞰图庭院入户部分采用传统的影壁装饰设计保障住宅的私密性;宅院内所有屋顶均可上人,建成后种上花花草草,田园情调的生活一定充满鸟语花香。
推荐阅读
- 饱和度|173㎡轻奢新中式,古典和现代的碰撞,唯美浪漫!
- 灵魂深处|全屋定制案例|儒雅新中式,展现灵魂深处的东方情怀
- 传统|189平现移步换景,以景造景打造富有传统韵味的新中式设计
- 搬家公司|乡住免费图纸土建造价参考88万面宽15.5m 进深14.4m 三层新中式别墅
- 造价|乡住土建造价参考81.2万,面宽13.4m×进深11.9m 三层新中式风格别墅
- 效果图|临平大运河国家文化公园核心区块设计初审方案出炉
- 效果图|大熊想回自己家,竟然要戴上面具,这究竟是为什么呢
- 阳台|发现一户很有品味的中式样板房,两层复式楼,格局好,装修很高级
- 别墅|内江小伙买不起房,在老家石壁凿出两层别墅,如今却遇到了麻烦事
- 装修|雅致东方,每个人都有喜欢的新中式,同事家是这样装修的,特好看!
