浅灰色|75㎡ 两居室,超多储物空间好看又实用,又充满高级感的生活空间~
本案业主是一位对品质有追求,审美极其克制的生活家,他希望用最少的材料,最朴实的设计语言,做出既满足功能需求,又充满高级感的生活空间。

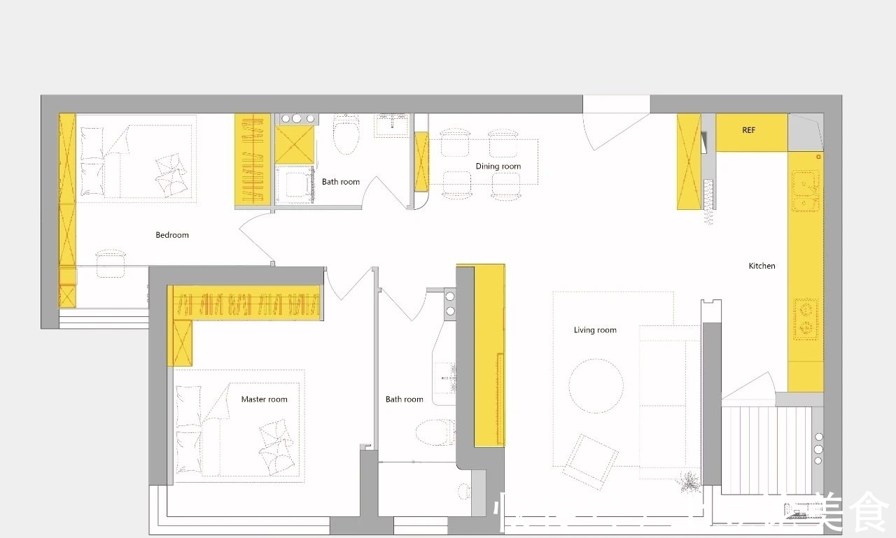
定制的玄关柜,将开放式与封闭式两种储物方式结合,有效的利用了每一寸空间▽

整个项目室内面积不大,设计上化繁为简,借以保持空间的质感:外表平静,却承载了生活的丰富。
全屋的地面全部使用一种材质,且完全通平。白色乳胶漆,浅灰色地面,搭配浅色木纹机理穿插其中,让空间温暖而舒适。

极简不是一种设计风格,而是一种工艺标准。所谓少即是多,前提是大量的技术沉淀,功夫都下在了看不见的地方,只有这样才可以保证所呈现出的空间是真正的简约而又极富质感的,否则那不叫简单,而是简陋。

微微翘曲的天花,灯光渗透下来,呈现锐角的边缘,简洁有力。施工完成度几乎达到了产品级别。

水磨石质感的墙壁,跟地面的浅灰色,墙面的乳胶漆的白色,相互辉映,质感层层递进又相似和谐。

每一个追求极致工艺的背后,都是耗时,耗力,耗心的过程,我们为了精进一毫米,付出了10倍20倍的努力,也许理论上1毫米以内的误差我们永远做不到,但是我们在追求极致的过程中,成为了更好的自己。


一体式的橱柜设计细节满满,合理的橱柜规划也让每一件厨房用品都有自己的归宿▽

素雅,干净,简洁的线条,是室内的主旋律。

主卧内侧的床头柜与衣柜和书架结合,做成一区三用的设计▽

推荐阅读
- 屋主|56㎡小户型老房改造,小而美的设计!
- 现代风|168㎡现代风,带着浓郁的归属感与愉悦感
- 深色|155㎡简约风,承载着三代人的生活,不花哨让家务少一半
- 混淆感|146㎡北欧经典白色三居室,诠释令人心醉的优雅
- 饱和度|173㎡轻奢新中式,古典和现代的碰撞,唯美浪漫!
- 背景墙|97㎡现代风,以时尚打造空间,以新颖突出特点
- 地板|160㎡四居室,玄关比我家卧室都大,这才是真正的低调奢华有内涵
- 棚户区改造|开盘预告|合肥又有6盘要加推,均价1.39-2.54万/㎡全都有
- 小房间|参观140㎡大婚房,朋友都夸餐边柜有档次,我却更喜欢主卧的飘窗
- |73㎡复古风两居室,年轻夫妻的高品质生活
