新中式|农村建房,推荐这套新中式别墅给你,大卧室大厨房一应俱全
古典有韵味的新中式别墅人人都爱,家住重庆的肖先生便梦想着拥有一栋属于自己的中式美宅。
但肖先生家的情况比较特殊,拆掉的老宅预留了一部分想与新宅建在一起,同时室内布局需紧凑些,家中常住人口不多,卧室只需要设计4间就够住了!更重要是,厨房需要做成挑空式。
按照肖先生的建房诉求,住宅公园设计了下面这款户型图,白灰配色细节满满,旧宅与新家相连,严格按照房主要求设计,从各个方面,带来全新的观感。
占地尺寸:13.76m×9.2m
占地面积:111.64㎡
建筑面积:216㎡
建筑高度:7.6m
建筑结构:砖混结构
建筑情况:4卧 2客厅 1餐厅 1厨房 2卫
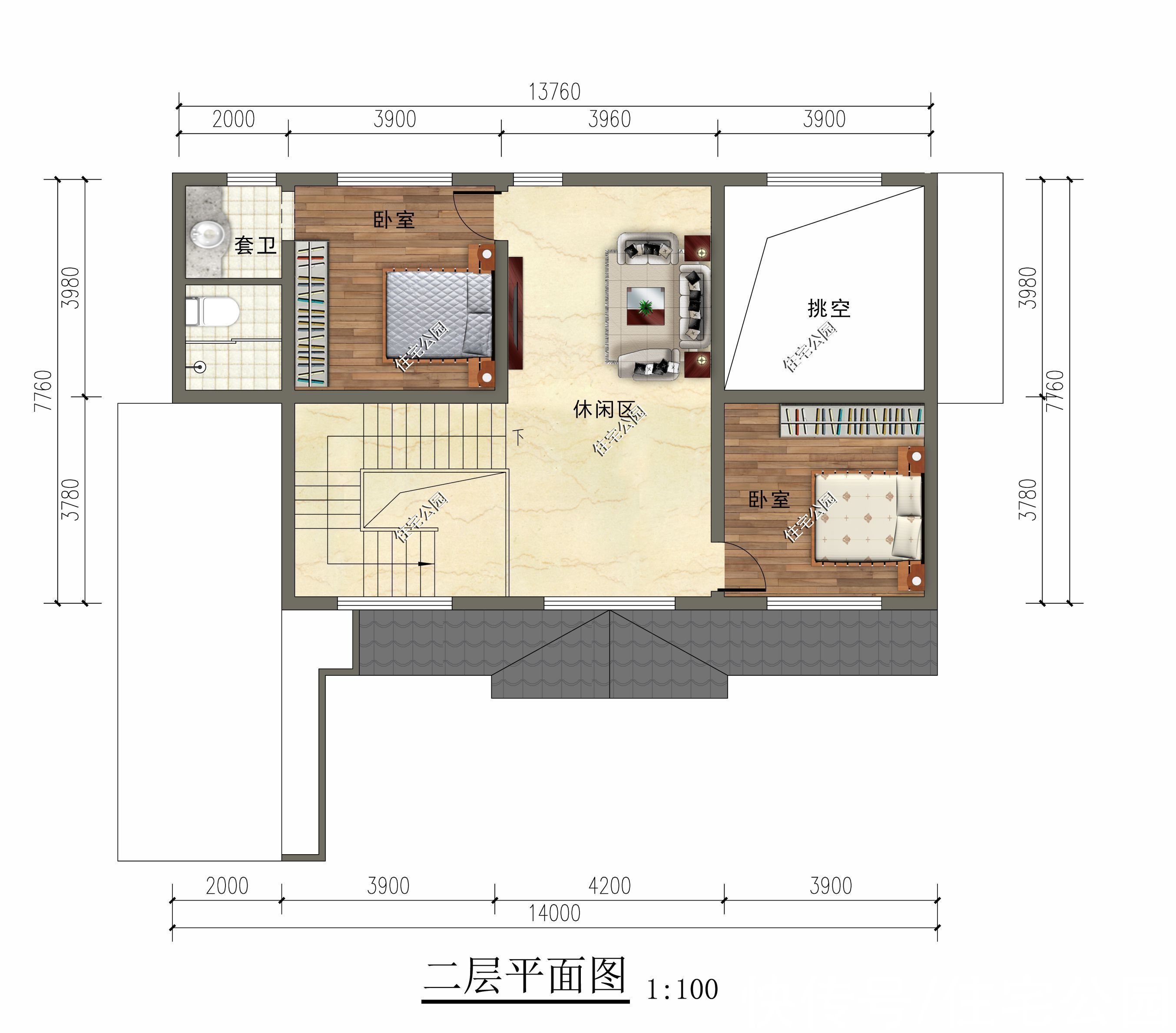
平面布局图:
简单随性的布局,注重生活品质感;一层设计双卧,保证家人的居住舒适度。
一客、一餐、一厨的标准配备,展现的是对新生活的美好期盼。三分离的卫生间设计,使用起来更方便。
需要说明的是,平面图左侧留白地方,为旧房屋保留部分,新建房屋与旧房屋屋顶要连接。
二层设计双卧,布局与一层保持一致,公共区域打造成了休闲客厅,供客人在此闲谈。
按照业主要求,厨房上方挑空设计,增加室内跃动感。
【 新中式|农村建房,推荐这套新中式别墅给你,大卧室大厨房一应俱全】关注本号,更多农村自建房户型图欣赏,还有建房小知识,一手掌握。
推荐阅读
- 上港|从上港星江湾现场发来一条项目新消息,请查看
- 装修|乔迁新房3月以泪洗面!当初的不理智,连犯15个极品装修坑!作孽
- 饱和度|173㎡轻奢新中式,古典和现代的碰撞,唯美浪漫!
- 小钱|游点好笑!收手机的新方式,一抓一个准!这老师怕是柯南看多了?
- 情形|速看!武汉住房公积金贷款信用审核新标准发布
- 安置|上城区紫阳街道加速回迁安置 焕新美好家园
- 背景墙|97㎡现代风,以时尚打造空间,以新颖突出特点
- 疯狂|1月20日广州新房网签210套,增城以43套再次蝉联榜首!势头强劲!
- 中海珑悦府|中海珑悦府好不好?置业顾问从项目现场发回新组图
- 武汉市自然资源和规划局|确定了!白沙洲将新添一所高中
