机能|169平现代风三居室房,收纳设计和空间机能设计完美
业主是香港同胞,在本地事业有成。比较注重房子的功能性,本案注重收纳性设计和空间机能设计。
当生活越来越趋近简单,一个明快舒适的空间就成为了精神世界的港湾。在设计的过程中,家具的摆放要做到和整个空间风格统一化,才能体现出潮流气息。客厅的家具多以坐卧类为主,其中沙发、茶几等家具就占据了主要位置,因此其风格、造型、材料质感都会对整个空间风格的形成起到很大的作用。
由电视墙延伸的收纳柜,增加储物空间
客厅后方的书房以玻璃为隔,餐客厅之间紧密相连
电视柜悬浮不落地,展现轻盈利落视觉
卧室是除了客厅以外咱们在家中呆的时间最长的地方了,而且卧室又是一个休息并且相对来说比较私密的空间。所以装修的时候不用太繁琐,也无须太多的装饰。床可以选择宽大舒适的,门和吊顶可以选择质量好一点隔音效果强一点的。
主卧以屏风作为入门的缓冲,呈现若隐若现的优雅美感
主卧背景墙上采用软包工艺,有舒适感
如果条件允许的话可以在洗漱台上下安装两个储物柜,以方便放置一些洗漱用品,增加整个卫生间的美观性。
通往衣帽间的走廊,设置洗手台和梳妆台,让每一寸空间都有完整机能
家庭用餐空间的地面装修资料应该以各种瓷砖或复合地板为首选材料,这类材料具备耐磨、耐脏、易清洗等特点,不仅方便了家庭所需,减少清洁负担,又使得用餐空间变得丰富多彩。
餐厅的岛台和壁龛,合理赋予空间机能
衣帽间面积不需要太大,一般来说,4平米左右就可以了,可以利用隔板、抽屉等存放大量衣物,除衣服外、还可以放置鞋帽、手袋、浴巾、床上用品等,此外,衣帽间内部还需要根据衣物的不同进行分区,如内衣区、鞋袜区等。
格局调整后,宽敞的衣帽间可以收纳大量衣物
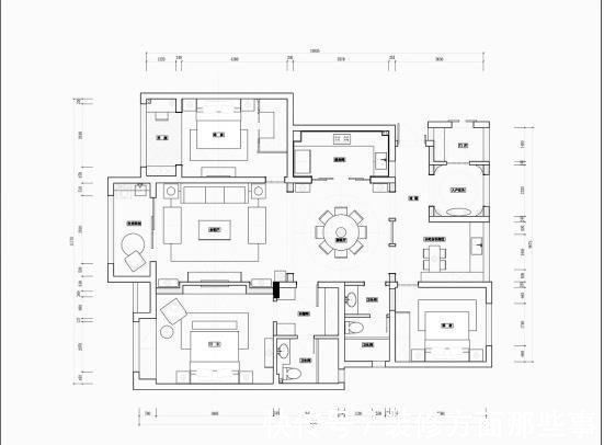
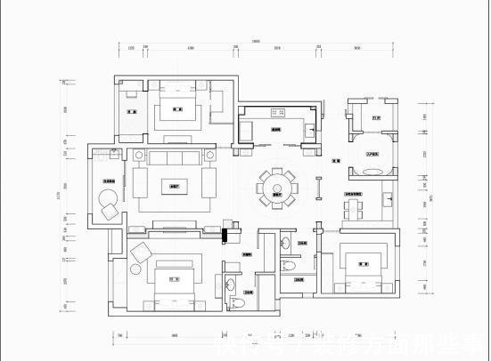
【 机能|169平现代风三居室房,收纳设计和空间机能设计完美】本案原始户型图,需做拆改
推荐阅读
- 卫生间|129平现代美式三居室,打造出一个舒适又温馨的美式家
- 三居室|118平现代风三居室,一个简单而纯粹还原生活色彩的家
- 郑州|买房月供曝光!郑州最新平均工资8694元,撑得起房贷么?
- 石家庄|144平的面积,无人值守棋牌室,这是如何做到的?
- 简单感|现实的平衡取舍,才是生活之道!143平现代风格设计欣赏!
- 她家148平米,进门就被玄关迷住,不做吊顶跟背景墙,阳台超漂亮
- 修建|精选10套三层户型图纸,占地面积均不足百平,尤其适合新农村修建
- 南通|拍卖成功!江苏南通一处197平住宅192万成交!
- 购房置业|农村建新房就选这套四层别墅,占地100多平,8间卧室人人都有地睡
- 现代简约|青岛房价不是低洼地了,房价高达1.6万一平
