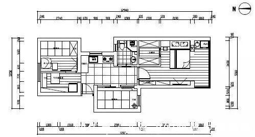
衣帽间|三代人的50㎡小户型,三室一厅+独立衣帽间,老破小逆袭小豪宅!( 二 )

(本文由齐家安安整理编辑,图片来源于网络,如有侵权请告知我们删除!)
推荐阅读
- 春节|如果能重来,阳台一定“9不装”,并非迷信,是过来人的经验教训
- 深色|155㎡简约风,承载着三代人的生活,不花哨让家务少一半
- 深圳市|条件真的太差了!全红婵家就有3间红砖瓦房,住的楼房都是别人的
- 房价|房价下跌后,这2类人的利益严重受损,希望你不在其中
- 曼哈顿|身处曼哈顿,250亿房产项目要烂尾?2500名中国投资人的绿卡成疑
- 餐边柜|这才是咱们普通人的装修,真实又充满了烟火气,有房子真想照着抄
- 名字|房产证上最好不要写夫妻两个人的名字,以前不懂,现在知道也不晚
- 登记|土地使用权人的变更登记流程
- 储物柜|为什么日本人的家看起来更“宽敞”?而我们的家看着就很憋屈!
- 衣帽间|180㎡大平层装成北欧风,不光过道打了整体柜子,独立水吧给力
