储物空间|老公硬把餐厅设“半堵墙”,客厅加个假飘窗,聪明极了!
因为考虑到家里的收纳功能,而且老公很想要一个书房,设计的时候老公硬把餐厅设“半堵墙”,还把客厅加了个假飘窗!电视墙装满柜子,完工后觉得聪明极了,朋友亲戚来参观纷纷夸赞实用又大气。真的特别漂亮,如今我家也通风后也入住啦,忍不住也凑热闹晒晒,希望给各位一个参考!户型图
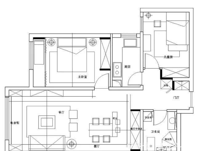
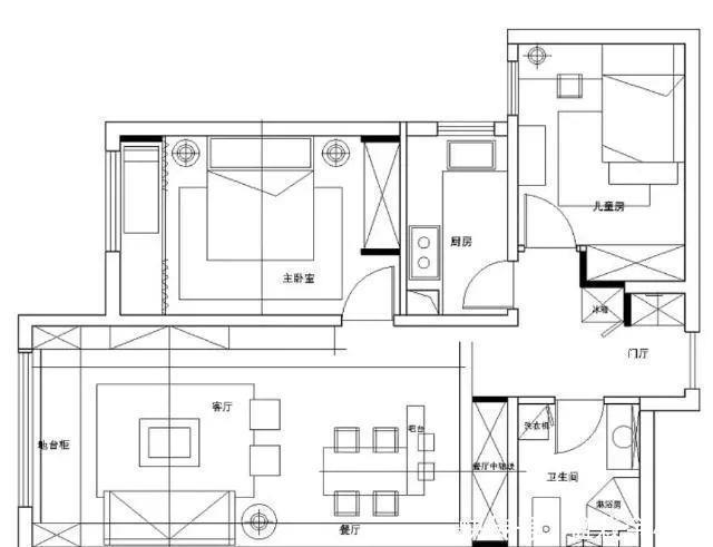
这是我家房子的户型图,标准两室一厅一厨一卫的户型。餐厅
本身我们是受到网友的启发,决定把餐厅打造成卡座的模式,后来老公灵机一动。硬是要在餐厅设“半堵墙”,就是餐桌椅左边这面墙啦。
【 储物空间|老公硬把餐厅设“半堵墙”,客厅加个假飘窗,聪明极了!】
没想到瞬间隔出来一个开放式的书房,可以说是书房也可以说是休闲书吧,除了看出还可以作为办公休闲的位置。半堵墙背后是一整面墙的收纳柜,可以储存我家的各种杂物,换季电器等等,实用极了。收纳很重要,尤其是家里有小孩更要重视储物空间,这个设计可以说绝了。
透过餐桌椅看电视背景墙,满满当当的书柜设计,让整个客厅充斥着文化气息。
电视墙的设计选择了灰色的柜体,柜子的设计也挺有格局感的,尤其中间的凹槽正好用来摆放电视机,总体看上去也不会突兀。
整个客厅属于现代简约的气息,地面是实木地板,客厅家具主要来自网购。棕色布艺沙发耐脏耐看,圆形的极简风茶几。
我最喜欢的就是柜子延伸到客厅窗边,这个假飘窗的设计,不得不说客厅加个假飘窗!真心聪明极了,不仅多了一个休闲小茶室,上面还能躺靠休息。
假飘窗和柜子打开是满满当当的储物空间哦!晚上打开灯带也十分不错。主卧
黑色的皮质靠垫大床特别耐看,整个主卧温馨又富含质感。儿童房
我家熊孩子的房间,给他装了榻榻米床、书柜结合书桌的设计,榻榻米床是侧开形式的,侧面有抽屉打开可以储物,十分的方便。蓝白相间的墙面,也是充满童趣,十分适合男孩子。
床对面是一组定制的衣柜。齐家小灵儿提供更多装修资讯,喜欢我的朋友记得收藏和关注哦!(素材来源网络,无法核实真实出处,如有侵权,请直接联系齐家小编删除。谢谢!)
推荐阅读
- 美好生活|欧哲门窗副总经理周志军:「拓」不忘初心同心同德,成为美好生活空间首选品牌
- 银行|请注意!今日起各地房贷利率普遍下降5个基点 业内预期:部分地区房贷利率或仍有下调空间
- 背景墙|97㎡现代风,以时尚打造空间,以新颖突出特点
- 购房置业|上海女子拍下对楼住户家无敌露台,超大空间网友酸了:买房送操场
- 墙面|过道能''挤''出空间 5种方式帮你充分利用每一寸,档次蹭蹭上涨
- 烤漆面|老公坚持餐厅不做柜子,原来用吊兰做隔断可以这么漂亮,学到了
- 全屋|次卧空间小,老婆灵机一动不装“床”,孩子一眼就喜欢上了晒晒
- 插头|老公花了100块钱把家里插座装成这样的,再也不用拔插头了,真是太机智了
- 轻奢风|什么样的生活空间,才算得上是美好现代轻奢风,大道至简
- 购房置业|三四线城市的住房真的值得购买吗?不能一概而论,还是有升值空间
