简约|有钱就买大平层吧!320㎡打造简约轻奢范,进屋太羡慕了!
越来越多人对大平层情有独钟,不仅是宽敞舒适的居住空间,还有周围地段和景观。得天独厚的资源优势,可以让你远眺城市繁华,享受生活的惬意舒适。这次分享一套大平层户型装修,套内320㎡,屋主夫妻为了给孩子一处自在成长的环境,以简约纯净风格为装修主轴,细腻拿捏柔灰、润白、墨黑与原木色泽的配比,调和出简净却温暖的居家氛围,进屋太羡慕了!▼房屋基础信息项目面积:套内320㎡项目地址:台湾台中市项目设计:分子设计
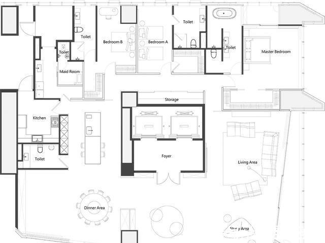
▼装修平面图套内320㎡的空间,将公共领域空间放大,简约纯净的装修格调,以轻浅色调为主,带出简约轻奢质感。
▼玄关设计进门就是一道风景线,全幅落地窗设计,搭配柔纱窗帘,映入澄澈和煦日光。水平铺展橡木实木地板,清晰的纹理烘托自然气息。靠近入户门,利用深沉胡桃木饰板装饰,深浅色对比带出空间层次与温度。
带有柔弧线条的花形沙发椅,点缀装饰形成一处过渡场域。安格拉珍珠石材修饰柱体,清新的石纹络,光泽中流露质感。延伸一道书架墙,嵌入浅木质层架与金属隔板,构筑一道休闲端景。
▼客厅/办公区设计两面全幅落地窗设计,使日光径自蔓延每寸角落,烘托澄澈清宁氛围。客厅与办公区无须实墙分隔,仅靠单品家具轻巧定义空间功能。
角落竖立一座旋转书架,错落有序的书格叠出横纵层次。当日光透窗洒落,交错光影使简净基调添上一抹流动意蕴。木地板按照客厅动线改为纵向铺展,让开阔明亮的空间,悄然划出清晰界线。
▼餐厅设计屋主夫妻指定摆设一张大圆桌,使亲朋好友来访时能相聚共餐。圆桌区以温润木地板围塑自然舒心氛围。圆桌旁,沿着墙面拉伸一道简白储物柜,舍弃明装门把手,还原纯粹通透的空间感。
餐厅与西厨相互连贯,通过地面材质的不同界定空间。舍弃了地板压边条的嵌入,整体效果更简洁美观。
▼厨房设计地面改用浅灰雾面薄地砖,以120*120cm规格,消除紊乱沟缝线条。中岛台与木桌设计,擘出平日简易用餐区。
雾黑色泽装饰墙面,使立面散发沉稳美学力度。中厨入口和客卫门采用意大利FENIX板材作为衔接,形成流畅连贯的视觉效果,与餐厅形成鲜明色彩对比。
考虑到用餐享受,安装了电视。以松柏石砌构电视墙,干净利落的纹理,无形中淡化了电视边框线条,勾勒出简洁视觉美感。一道玻璃滑门,成为公私领域之间的清透介质。
推荐阅读
- 深色|155㎡简约风,承载着三代人的生活,不花哨让家务少一半
- 大悦城|家里这两个地方别漏了贴瓷砖,许多人为了省钱,入住就后悔了
- 管道|为什么说:再穷也不买二层?了解这些弊端之后,就知道多糟心了!
- 她家148平米,进门就被玄关迷住,不做吊顶跟背景墙,阳台超漂亮
- 楼层|对于买房选楼层,一旦你忽视这5件小事,就只能买到“垃圾楼层”
- |看到对门挂这个,赶紧让他拆了,不然财运就要走下坡路了
- 深圳市|条件真的太差了!全红婵家就有3间红砖瓦房,住的楼房都是别人的
- 二手房|没有过户,房子就不是你的!二手房“延期过户”有哪些风险?
- 装修|总结我的新家装修完就后悔的37条防坑经验!记住少走弯路!
- 购房置业|对于买房选楼层,一旦你忽视这5件小事,就只能买到“垃圾楼层”
