别墅|2020年至今共621套,老派3层欧式别墅还是很火
从2020年1月1日至今,这套老派3层欧式别墅图纸,已经有621位业主选择。其中大部分已经开始施工,坐等各位业主反馈图。
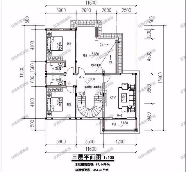
这是我们后台数据显示的结果,其实还有部分直接购买图纸的没有算进来。牛皮,我们就不吹了,一切都看数据说话。究竟这套老派3层欧式别墅图纸,为什么这么受欢迎?我们先来看看图纸。
【 别墅|2020年至今共621套,老派3层欧式别墅还是很火】
别墅图纸
别墅图纸
别墅图纸
别墅图纸
别墅图纸
别墅图纸
别墅图纸
别墅图纸
这套老派3层欧式别墅图纸火的原因,看看图纸和数据,其实也是预料之中的。占地128㎡左右,主体预算37万,很符合我们大部分地区的政策要求和经济实力。虽说在颜值上,拼不过现在刚出的图纸,但也不差。理所当然的就成了2020年上半年最受欢迎的3层欧式别墅图纸了。
推荐阅读
- 建房子|面宽11米, 进深16.5米的农村三层别墅, 前后有花院还带车库, 完美!
- 别墅|参观亲戚上海的豪宅,别墅硬是住成农村房,真是糟蹋了好房子
- 购房置业|农村建新房就选这套四层别墅,占地100多平,8间卧室人人都有地睡
- 别墅|土豪农村盖大别墅,人人羡慕,如今却成为全村人眼中的大笑料
- 别墅|买不起别墅,买了一楼带30㎡院子的房子,入住两年多,后悔了吗?
- 贵州|利落挺括,12×11米现代二层别墅,4卧2厅好格局开启全新生活
- 北碚|重庆北碚高端别墅群,数量众多依山而建,满目疮痍好比世界末日
- x2|三层现代风格别墅 140平米,清新脱俗,是当下年轻人最喜欢的设计
- 搬家公司|乡住免费图纸土建造价参考88万面宽15.5m 进深14.4m 三层新中式别墅
- 露台|推荐5款三层别墅设计图纸,最适合农村建的房子
