电饭煲|看92平紧凑三房如何放下一家三口大大的幸福
写在前面:
幸福的三口之家,憧憬着未来美好的生活,家不大,但关于幸福的东西都想要有,想有大大的落地窗,想要可以一起操作美食的宽敞厨房,想要有大大的浴缸,孩子有自己独立的学习生活空间...
我们接到设计委托,参与了客户大到生活方式的探讨,小到生活电器选择的全部。
《原始户型图》
1原始户型的厨房很小,不够用,业主有中式西式厨房的需求,所以厨房区域会进行改造。
2客厅餐厅面积比较的局促,需要优化。
3主卧室房间不够规整,可以进行优化。
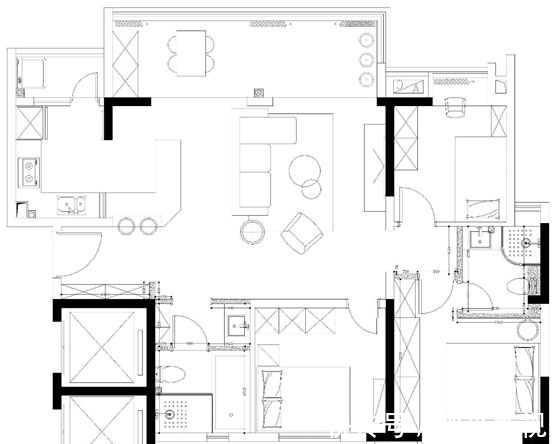
《改造后的平面布局图》
本屋设计【亮点】
1我们保留原来的厨房位置为中厨,煎炒炸炖完全没问题,也放下了客户心心念念的洗碗机、厨余垃圾处理器,再也不用饱餐以后抽签谁洗碗啦!再占用客厅四分之一面积做了吧台与厨房相连,解决了厨房拥挤放不下中西厨用品的问题。
2将阳台区域全部打通,原来的推拉门拆除掉,起十公分的地台,和客厅形成开敞的互动,一边做成了阳光餐厅,旁边是烘焙操作台。这样做大大增强了客厅的采光,让餐厅和客厅空间都很宽敞,满足了客户大大的落地窗的诉求。这样的布局,让家庭氛围非常好的得到照顾,互动会非常顺畅。
【玄关】
入户右侧,我们设计了很实用的鞋柜衣帽柜,入户门正前方尽头,是一面乐高墙,放眼望去,家庭乐趣氛围感一下就跳脱出来。
【客厅】
客厅沙发三加一的组合,旁边地台其实也是这个区域位置上的空间补充。
原来的阳台区域,现在成了可变的多功能空间,是女主的烘焙区、是餐厅、是休闲观景区、是男主人偶尔办公的工作区。
【餐厅】
餐厅区域是之前的阳台,餐厅区和中厨、客厅区独立又联动,阳光餐厅的感觉,家人用餐非常惬意。从中厨区延伸出来的西厨烘焙区正好就在餐桌旁边,蒸烤箱、微波炉、电饭煲、电磁炉、料理机统统都收纳在这个区域,实用美观。
【卧室】
定制衣柜位于床的正前方,一排收纳,满足了主卧需求。
【儿童房】
儿童房高低床设计,上方是休息区下方是孩子的学习区,最大程度的利用好了空间,衣柜安排在房间左侧,窗户位置还留出孩子的活动空间。
【厨房】
L型厨房的布局,洗切炒从左到右,动线合理,也能容纳两个人在里面。
灰蓝色橱柜,搭配白色台面,整洁清新。
L型吧台,从厨房延伸出来,和中厨的橱柜平面上形成一个大的U型操作台面。这里吃个早餐,看着电视品个小酒,还是挺惬意的。
推荐阅读
- 上港|从上港星江湾现场发来一条项目新消息,请查看
- 小钱|游点好笑!收手机的新方式,一抓一个准!这老师怕是柯南看多了?
- 情形|速看!武汉住房公积金贷款信用审核新标准发布
- 餐边柜要做成什么样子才实用又好看看看这几款餐边柜设计
- |外墙内保温如何施工?现场示例!萌新必看!
- 卫生间|129平现代美式三居室,打造出一个舒适又温馨的美式家
- 花花草草|10款高颜值阳台,你该看看!
- 三居室|118平现代风三居室,一个简单而纯粹还原生活色彩的家
- 郑州|买房月供曝光!郑州最新平均工资8694元,撑得起房贷么?
- 大门|房子大门万万不能朝这地方开,师傅看了摇头,怪不得我家越住越穷
