混搭|150平混搭风四居室,背景墙简约留白纯净而悠然
【 混搭|150平混搭风四居室,背景墙简约留白纯净而悠然】本案是一套面积150平米的四居室案例。的装修采用混搭风的设计,结合业主的其他需求,形成了一个安稳的住处,也让人也能看到生活本有的明媚。
客厅装修不仅是业主待客的地方,也是装修业主的一个脸面所在。如果在装修客厅的时候没有注意其中的要点,那么也就会导致最后的装修效果不是很好,这样的问题也就会让装修业主很是头疼。在客厅色彩搭配上各位装修业主一定要多注意,不要一昧的添加过多的色彩元素,使用过多会导致客厅整体装修效果下降。
洁白的电视墙配以原木电视柜,右侧摆放一盆琴叶榕,干净而又清新。
背景墙简约留白的基底下,融入温润木质的线条,纯净而悠然。
浅灰色沙发带来简洁优雅的感觉。
客厅以原木色与白色为主,加以绝佳的采光性,打造自然舒适的氛围。
卧室作为休息空间,应该具备安静的特点;同时,卧室的环保安全也很重要。要让卧室既安静又环保,最有效的是通过基础装修来做到,即从卧室的吊顶、墙面、地面方面采取相应措施。
主卧延续了客厅的原木与白色调,营造安静闲适的睡眠氛围。飘窗用木质包围起来,结合简约的百叶帘,休闲而又惬意。
书房设计光线万万不能忽视。书房的主要作用是办公学习,所以它对于光线的要求比较高,暗淡或者强烈的光线都不太适合工作学习,时间久了会影响人们的视力。
原木质感的书桌+多层置物架,摆放绿植与文艺小摆件,轻松实用又自然。
装修儿童房时应巧用富有想象力的配饰,尽量为孩子留有发挥自己想象的空间,为小孩子设计一个符合他的梦幻房间,多姿多彩,给予小孩一个自由的空间。
儿童房设计为上下铺的形式,不仅可以充分利用空间,同时还可以营造出温馨和谐的氛围。
玄关装修有什么技巧?玄关的空间一般不大,如果再把吊顶做得比较矮,就会让整个玄关看起来十分压抑,所以玄关的吊顶要选择浅色系的材料,让整个空间看起来开阔敞亮,减少压迫感。
玄关鞋柜底部留空放置常换的鞋子,另一侧墙面设置全身镜与挂钩,布置出一个舒适文艺的入户空间。
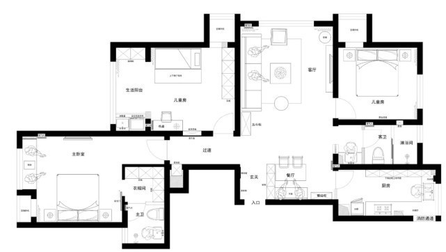
户型图
推荐阅读
- 贷款买房|买一套150平和二套75平的房子,到底哪个更划算终于明白了!
- 穿搭|136平混搭四居室,只要掌握方法,现代和复古也可以搭配在一起
- 百分点|招商局商业房托(01503)第四季度整体物业组合的出租率升至87.7%
- 起居室|124平米的四居室装修只花了13万,混搭风格让人眼前一亮
- 中式|晒一家三口的新房子,150㎡中式装修,住的很惬意!
- 家装|140㎡现代混搭风格,精致优雅的绅士灰,时尚人士的家装设计!
- 混搭|冷暖混搭,也可以如此温馨
- 阳光|150㎡现代风,质感高级,每个角落都是满满细节
- 新中式|这对夫妻俩装修思想前卫,全屋新中式混搭风格,效果让人羡慕极了
- 清新自然风|154㎡清新自然风,混搭出一个与众不同的家,颇具艺术气质
