清新自然风|154㎡清新自然风,混搭出一个与众不同的家,颇具艺术气质
案例背景
本案是一个四口之家,包括业主二人和他们的一双儿女,业主的父母过来带孩子的时候会临时住上一段时间。本案的男主人从事的是AI设计行业,女主人是美术教师,买下房子之后热衷于室内设计的业主也曾想自己设计,但是对于非专业人士来说,跃层的设计相对比较复杂,最后只能作罢,找来了本案的设计师操刀设计。


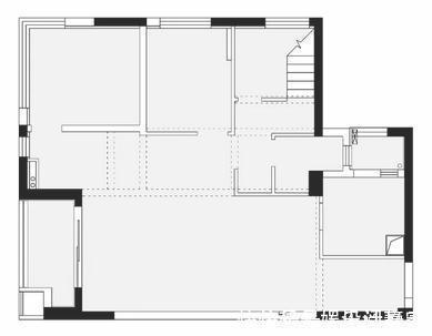
结构改造
业主最开始出于降低预算的考虑,打算采用北欧风,后来经过多方面的对比以及分析,最后决定用自然风混搭来打造他们的新家。在户型改造上,设计师根据业主的要求,拆除了房屋内的非承重隔断墙,可以说是把内部全部拆空了进行重新设计。比如,在入户的位置做了一整壁的鞋柜来解决储物问题,但是柜子太多会觉得拥挤,于是把厨房的隔墙打掉做成玻璃的,这样不仅拥挤不在了,而且还使厨房的采光得到了改善。另外,将原户型的楼梯移到餐厅与客卧之间,这样在减少空间浪费的同时,也更符合日常行走的动线。还有就是保留了一个洗衣房。




案例详解
客厅
实木元素由内向外延伸,温润的原木与纯白的墙体成为空间主体,自然光映照在上面,让空间产生冷暖交融的气氛。

简约的球状主灯搭配点光源,传统与现代的交相辉映。客厅中没有复杂的装饰陈设,形制简单的茶几、单人椅与灰黑的布艺沙发成为客厅的领衔主角。窗外和煦的阳光晒在白墙与实木家具上,独特的色彩让整个空间都包裹在静谧慵懒的家居氛围中。


绘画教师的职业调性使得房间里少不了美术元素的存在,中外不同风格的雕塑,低位摆放的墙画,以及收纳画卷的篮子都可作为新家的点缀。


餐厨横厅结构的公区赋予客餐厅整体的联动性,同时能够保证足够的采光与通风。宽敞的公区空间一点也不显拥挤,方便业主调皮的小儿子任意玩耍。

厚实的四角木质大圆桌,给人以沉稳的感觉,与白色的半圆球吊灯相呼应,同时搭配几把略显俏皮的餐椅,中和了空间中的厚重之气。
推荐阅读
- x2|三层现代风格别墅 140平米,清新脱俗,是当下年轻人最喜欢的设计
- 隔断|112㎡清新北欧风,客厅砌个半墙隔出一间书房,2居变3居真实用
- 转角处|106㎡舒适北欧风,干净清新,舒适温馨!
- 储物空间|53平的北欧风小户型公寓,简单的色彩营造出清新感,轻松惬意!
- 书房|94㎡低饱和度的莫兰迪色系三居室,打造清新的浪漫
- 实木复合地板|131㎡新房简约现代风设计,没见过如此清新的家,太惊艳
- 爱花|93㎡现代简约,阳台的清新,透过玻璃充满了全屋!
- 学区|夫妻改造学区房,56㎡小家清新明亮,让孩子生活学习环境更舒适!
- 现代自然风|120㎡现代自然风,原木色的软装,搭配皮质感,打造优雅的家!
- 餐厅|116㎡时尚北欧风,清新配色超漂亮,把生活过成诗!
