书房|90后小夫妻却偏爱中式装修,去除繁琐设计,书房的设计更为独特!

90后小夫妻却偏爱中式装修,去除繁琐设计,书房的设计更为独特!
现在也有很多人开始喜欢上传统的中式装修,尤其是添加了现代元素的新中式风格,更是让人很喜欢,今天和大家分享的这个房子就是一对90后小夫妻自己设计的新家,当初装修的时候家里都没有想到这对年轻的小夫妻会喜欢比较现代的装修风格,不过这对小夫妻却是坚持选择了中式的装修设计,去除了比较繁琐的装修设计,呈现出材料的本质,让人得到彻底的放松,尤其是书房的设计更为独特,就连父母都对书房称赞不已!
房屋户型
:复式
房屋面积:
262平方米
装修预算:
50万元以上
所在城市
:广州
设计师:
曹文轩
主要材料:
线板、木作、石材、磁砖、喷漆、木地板等

书房|90后小夫妻却偏爱中式装修,去除繁琐设计,书房的设计更为独特!


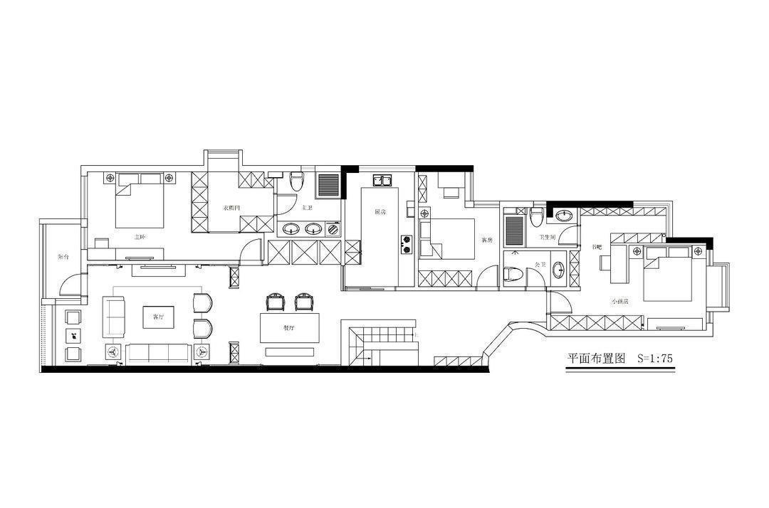
【户型图】
这个房屋是一个复式的结构,房屋内部可以使用的面积还是很宽敞的,平时家里的常住人口就是这对小夫妻,平时父母和一些亲戚朋友可能会过来居住,两个人也打算在一两年之后要小宝宝,所以装修的时候为父母和孩子都准备了房间,也设计了储物空间满足以后的生活需求。

书房|90后小夫妻却偏爱中式装修,去除繁琐设计,书房的设计更为独特!


【玄关】
设计亮点:地砖作为隔断
进门玄关的位置选择了简单的实木座椅方便平时换鞋,实木的换鞋凳和鞋柜让人感觉也很舒适,进门就可以看到通向楼上的楼梯,砖石的设计保留了材质的本质,玄关的位置通过地面的瓷砖和客厅进行区分和过渡。

书房|90后小夫妻却偏爱中式装修,去除繁琐设计,书房的设计更为独特!



书房|90后小夫妻却偏爱中式装修,去除繁琐设计,书房的设计更为独特!


【客厅】
设计亮点:实木沙发
客厅也没有选择现在常见的布艺或者是真皮沙发,而是选择了传统的实木沙发,实木的材质更加耐用有质感,搭配同一个系列的实木茶几十分的大气。

书房|90后小夫妻却偏爱中式装修,去除繁琐设计,书房的设计更为独特!


考虑到实木的沙发和茶几会让室内的颜色变得比较深,所以装修的时候选择了大理石来修饰墙面,吊顶的四周也添加了灯带作为照明,让室内的光线变得更好,整个房屋看着都很通透。

书房|90后小夫妻却偏爱中式装修,去除繁琐设计,书房的设计更为独特!


【厨房】
设计亮点:实木橱柜
厨房选择了实木的橱柜和深色的操作台面,因为厨房正对着一扇窗户,所以厨房里面的光线很好,装修的时候也是根据业主的做饭习惯安排了厨房操作区、做菜去和洗菜区的位置。

书房|90后小夫妻却偏爱中式装修,去除繁琐设计,书房的设计更为独特!



书房|90后小夫妻却偏爱中式装修,去除繁琐设计,书房的设计更为独特!



书房|90后小夫妻却偏爱中式装修,去除繁琐设计,书房的设计更为独特!


【 书房|90后小夫妻却偏爱中式装修,去除繁琐设计,书房的设计更为独特!】【餐厅】
设计亮点:实木桌椅
餐厅也选择了实木的桌椅,餐厅旁边还选择了毛笔字画和装饰品来装饰房间。

书房|90后小夫妻却偏爱中式装修,去除繁琐设计,书房的设计更为独特!



书房|90后小夫妻却偏爱中式装修,去除繁琐设计,书房的设计更为独特!


【卧室】
设计亮点:暖色灯光
卧室选择了暖色的灯光和温暖的设计,打造了一个温馨舒适的睡眠环境。

推荐阅读