溢价率|竞配建!总建近21万方!近邻这所大学!泉州九月再出一地
9月29日晋江一幅总建近21万方商住地块将出让地块位于晋江金井镇盐场近邻福州大学晋江校区、金井镇政府土地面积99782平方米总建筑面积约20.95万平方米地块采用“限房价,限地价,竞配建”方式出让拍卖时间:2021年9月29日毛坯商品住宅最高销售均价为7810元/㎡土地拍卖最高楼面地价设定为2701元/㎡溢价率约为48.95%(即对应的最高总价为5.66亿元)
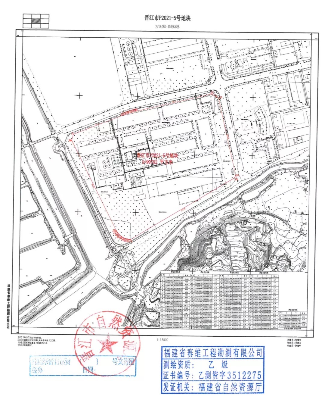
晋江市2021-5号地块
【 溢价率|竞配建!总建近21万方!近邻这所大学!泉州九月再出一地】▼
(一)土地位置:位于金井镇盐场,具体用地位置及范围见附图。
(二)土地面积:99782平方米。
(三)土地用途:商服用地—零售商业用地(商店)、住宅用地—城镇住宅用地(普通住宅)、公共管理与公共服务用地—教育用地(幼儿园)。
(四)土地使用年限:商业40年、住宅70年、教育50年。
(五)主要规划经济技术指标:1.0<容积率<2.1,10%<建筑密度<22%,绿地率≥30%。
规划设计条件详见《晋江市自然资源局关于下达晋江市P2021—5号地块规划条件的通知》(晋自然资规〔2021〕90号),规划经济技术指标应严格执行,不得调整。
(六)地块教育配套按照《晋江市教育局关于晋江市P2021—5号地块规划设计条件意见的复函》(晋教函〔2021〕164号)执行。
(七)地块养老服务设施配建要求按照《晋江市民政局关于晋江市P2021—5号地块配建养老及社区公共服务设施的函》(晋政民函〔2021〕92号)执行。
(八)起叫价:38000万元。
(九)拍卖最低增价幅度:100万元。
(十)毛坯商品住宅最高销售均价为7810元/平方米
>>>注意:
该用地采取“限房价,限地价,竞配建”的竞拍方式出让,地块建成后毛坯商品住宅最高销售均价为7810元/平方米,土地拍卖最高楼面地价设定为2701元/平方米(即对应的最高总价为5.66亿元)。当拍卖中竞买人报价溢价率达到设定的最高值时,不再接受更高报价,对于有意向的多个竞买人,转为竞配建,即竞报无偿移交政府的住宅建筑面积,每次竞报配建面积应不少于100平方米的整数倍,竞报配建面积最多者为竞得人。
?
推荐阅读
- 苏州|#苏州头条#吴中区学区房无溢出价值?
- 激荡2021|溢价低、区域分化显著,房企更理性了吗? | 宗地
- 溢价率|“中国女排娘家”基地片区5幅商住地块成功拍出!全部国企拿下
- 房产证|业主花高价买商铺,给高房租还溢价回购,结果1年给几百元房租
- 溢价率|出让的土地流向哪里哪个区出让土地最多
- 长春|87轮次报价,溢价25.79%!太原一罚没房产竞价激烈火爆成交
- 地块|冷热交替、溢价下降 2021年集中供地“元年”上演“过山车”
- 研究中心|北京集中供地收官:全年揽金1900.4亿元,溢价率5.6%创新低
- 建筑面积|两家房企冒头!溢价率拍至2.6%!烟台南城车山路地块今日开拍
- 浙江|滨江联合浙江中豪22.25亿元竞得杭州1宗住宅用地,溢价率9.88%
