装修|他买下118㎡三室当婚房,拒绝土味装修,现代简约清爽大气,美极了
在大多数人的眼中,结婚用的新房,必定离不开红色,它代表着红火喜庆,我们中国人都喜欢,但看多了千篇一律红色气球和拉花,确实有点土气。现如今90后都进入结婚年龄,很多人在装修婚房的时候,拒绝土吐布置,用最时尚潮流的装修风格来装修新家,真的是非常前卫好看。正如今天小编要来给各位朋友分享的装修案例,一位来自杭州的90后男生,买下118平方的三室,在这里准备迎接他美丽新娘,新家他采用现代极简装修风格,效果出来惊艳全小区,全屋干净清爽,敞亮大气,真是美极了。
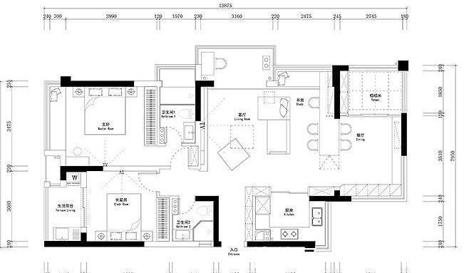
男生对这个新家充满了期许,把家装成他与姑娘两人都喜欢的样子,新家不仅需要有高颜值,还要实用,两人今后在这里,携手度过风风雨雨,家居生活的杂物肯定不少。家中还有另一名成员,跟随男生几年的小猫咪,也需要留一处单独的区域供它活动,所以结合这些,男生将平面布置优化到最合理,下面便是新家最终的平面布置。
三面采光是这套房子最大的优势,客餐厅和阳台连一体形成明亮开阔的阳光厅,男生在室内还做了大量的收纳空间,确保后期家中添置成员时最大化满足收纳需求。接着跟我一起去看实景!
客厅,现代极简很大气


穿过玄关区的整排鞋柜来到客厅,我们看到现代简约风格令室内呈现无比的干净与整洁,整个动区均采用低饱和度的色系,令空间呈现一种柔和的美,与传统的婚房相比,它可能没有那么显喜庆,但它更有个性,更时尚,这种色系适合的年龄段非常广泛,不仅适合屋主这样的90后有小年轻,对于80后,甚至是70后,它都显示出沉稳感,不会觉得浮夸。


在家具的搭配上,男生用了轻便的模块式组合沙发,与传统沙发的高度相比,这种外形体积看上去更加小巧,但丝毫不影响质感,它是很厚重结实的,成人站在靠背上,都不会摇晃,由于比例较小,所以整个动区看上去极为的开阔,相当大气。
客厅的另一个亮点便是阳台的小抬高区,用上原木色的饰面板,其实仔细看后不难发现,家中多以原木色进行点缀,这种温润如玉的色调让家多了份温馨之感。在抬高区放了一个迷你的铁锈红装饰物,强烈的视觉冲击令空间的观赏效果变得更加好。
室内所有的窗户都选择安装上日夜帘,足以显示男生有着极高的品味。日夜帘由两种不同材质组合而成,可采光,可遮光,即使是白天,调成遮光也能安然入睡。男生将它进行竖向安装,完美的线条感令空间呈现出极简,与传统布艺窗帘相比,它更加简约大方,让家显得更加出彩。
推荐阅读
- 装修|乔迁新房3月以泪洗面!当初的不理智,连犯15个极品装修坑!作孽
- 装修|淋浴房还可以坐着洗澡,一开始很不理解,装修后才发现太实用了!
- 施工者|不管家多大,装修时做好这12处细节,美观与舒适并存,幸福感提升
- 心塞|5个月装修一套房,硬装让我喜出望外,结果家具一上全废了!心塞
- 装修|空调外机万万不能这样挂墙,若不是师傅提醒,我家都装错了!
- 洗头|崩溃现场:装修的10条坑,我都替你踩扁了,请你一定要避开
- 抽油烟机|婆婆抠出新境界,5万装修婚房还带家电,如此寒酸真让人不想嫁了
- 房产税|美国作为发达国家,他们为何不用混凝土建造房子原因很现实
- 房子|越来越多人用这“两个方法”装修房子,可升值十几万!
- 卫生间|房屋装修6大暗坑,哪个踩了都会导致返工,希望你没踩到。
