实用|89平简约美式实用刚需三室
89平简约美式实用刚需三室
客厅纳入阳台,扩大使用面积与采光,阳台一侧打造嵌入式柜体补充收纳
本案在风格上定位于美式,运用浅色为基调,简约的家居让整体看着清新
客厅,白色护墙板结合蓝色花纹壁纸,提升空间颜值与层次
布置铆钉皮沙发搭配厚重的实木茶几与边几,加入绿植与抱枕修饰,增添了自然温馨的氛围
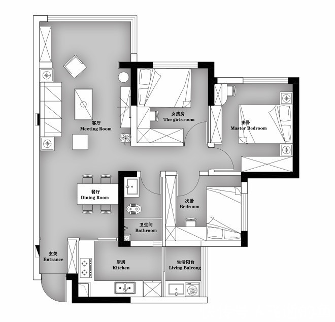
平面布置图
设计壁炉造型电视墙,赋有美式韵味,底部内凹预留插座与机顶盒位,避免线路凌乱影响美观
阳台望向整个公领域,一体式吊顶与背景更具整体性
餐厅,餐桌和斗柜选择了经典不过时的黑色,点缀金色拉手和桌脚
金属吊灯和挂钟交相呼应,厨房采用木框玻璃移门,隔离油烟的同时不影响通透感
厨房L型布局,墙地面通铺灰色石纹墙,黑白配色的橱柜结合金色把手凸显质感
主卧以奶咖色为主,显得温馨柔和,右侧做了一整面大衣柜
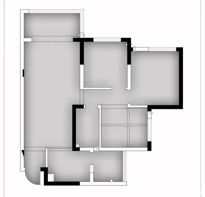
原始结构图
床头铺贴绿植壁纸,为空间注入生机 收藏
儿童房,选用蓝色的背景、床品与窗帘,增添清新爽适之感
推荐阅读
- 装修|淋浴房还可以坐着洗澡,一开始很不理解,装修后才发现太实用了!
- 深色|155㎡简约风,承载着三代人的生活,不花哨让家务少一半
- 灰尘|家中阳台不要装推拉门了,装这种更实用个性,不得不感叹太聪明了
- 餐边柜要做成什么样子才实用又好看看看这几款餐边柜设计
- 卫生间|129平现代美式三居室,打造出一个舒适又温馨的美式家
- 三居室|118平现代风三居室,一个简单而纯粹还原生活色彩的家
- 郑州|买房月供曝光!郑州最新平均工资8694元,撑得起房贷么?
- 石家庄|144平的面积,无人值守棋牌室,这是如何做到的?
- 简单感|现实的平衡取舍,才是生活之道!143平现代风格设计欣赏!
- 她家148平米,进门就被玄关迷住,不做吊顶跟背景墙,阳台超漂亮
