浅灰色|89平简约三室,老公坚持一进门设隔断,多出一个独立玄关
齐家小灵儿给大家分享的这套89平米的房子,虽然面积不大,但是好在布局合理,也装出了三个房间。尤其是一进门就设隔断的想法,不仅让原本无玄关的居室多出一个独立玄关,而且大大增强了隐私性,不得不感慨明智极了!
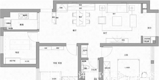
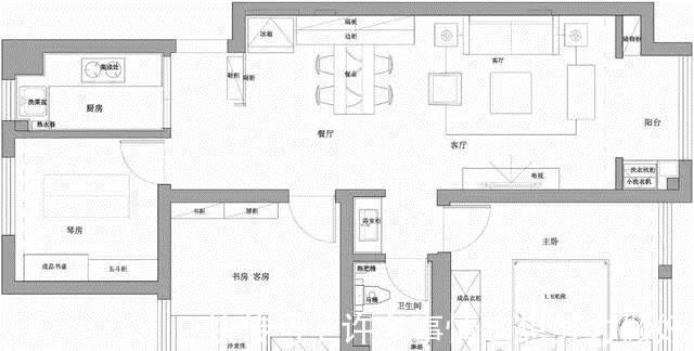
▲平面布局图
玄关
▲原户型没有玄关,但考虑到入户的美观性,在进门的左手边加了一个半高鞋柜和木栅栏的设计,如此一来,不仅解决了玄关鞋柜的问题,而且也缓解了一进门就是客餐厅的尴尬。
厨房
▲厨房在进门的右手边,与玄关之间用一扇黑框玻璃门隔断。白色的六边形墙砖,水泥灰地砖,搭配上原木橱柜,整体看起来干净整洁,自然大方。
餐厅
▲玄关木栅栏的后面便是餐厅,装修的比较简单,以实用性为主。一套结构轻巧的原木餐桌椅,旁边靠墙还摆了个矮脚斗柜和消毒柜,增加室内收纳。
▲冰箱也安排在了餐厅,在玄关木栅栏和餐桌中间,布局清晰合理。
客厅
▲客厅沙发背景墙刷成了浅灰色,搭配上黑白灰挂画,简约精致。蓝色的布艺沙发,也为室内增添了更丰富的色彩。
▲客厅电视墙也是浅灰色的,没有安装电视机,只摆了一套胡桃木色的电视柜和抽屉柜。
▲客厅硬装的色彩运用的很是低调,但是软装却搭配的很鲜明亮丽,整体看起来显得有活力了许多。天花板四周走了简洁的石膏板吊顶,搭配分子灯以及地面的木板等等,氛围挺温馨。
阳台
▲阳台和客厅之间没有设隔断,这样光线更通透,室内也更敞亮。阳台的右侧靠墙做了洗手池加洗衣机设计,加上储物柜,洗衣、晾晒、收纳,功能很强大。
▲阳台左侧墙面则设计了一个嵌入式柜子,用来放置了各种清洁用具,超实用。
走廊
▲洗漱台安排在了走廊过道一侧,双分离的结构实用倍增。
主卧
▲主卧室延续了客餐厅的色彩搭配,无论是点缀了装饰画的背景墙,还是柔软舒适的睡床和其它家具等等,给人感觉都很简洁清新。
▲床头右边配有一款壁灯,加上简洁的床头置物板和右侧的衣柜,该有的功能一个不落。
次卧
▲次卧也兼具书房功能,蓝色的休闲沙发其实可以拉开变成睡床;左侧是衣柜,木色的简洁立面配金色把手,优雅又自然。
推荐阅读
- 卫生间|129平现代美式三居室,打造出一个舒适又温馨的美式家
- 三居室|118平现代风三居室,一个简单而纯粹还原生活色彩的家
- 郑州|买房月供曝光!郑州最新平均工资8694元,撑得起房贷么?
- 石家庄|144平的面积,无人值守棋牌室,这是如何做到的?
- 简单感|现实的平衡取舍,才是生活之道!143平现代风格设计欣赏!
- 她家148平米,进门就被玄关迷住,不做吊顶跟背景墙,阳台超漂亮
- 修建|精选10套三层户型图纸,占地面积均不足百平,尤其适合新农村修建
- 南通|拍卖成功!江苏南通一处197平住宅192万成交!
- 购房置业|农村建新房就选这套四层别墅,占地100多平,8间卧室人人都有地睡
- 现代简约|青岛房价不是低洼地了,房价高达1.6万一平
