小户型|48㎡一房一厅改造成两房两厅,一点也不拥挤,设计师太棒了!
在现今房价压力越来越大的情况下,小户型也慢慢的开始受欢迎起来,虽然面积小,但是只要合理的对户型进行设计,小户型也可以改造成大空间。要多利用空间,才能发挥空间的作用,把小户型改造能合理的设计。下面这个小户型的改造案例,把48平一房一厅改成两房两厅,改造方案非常不错,非常有借鉴意义。
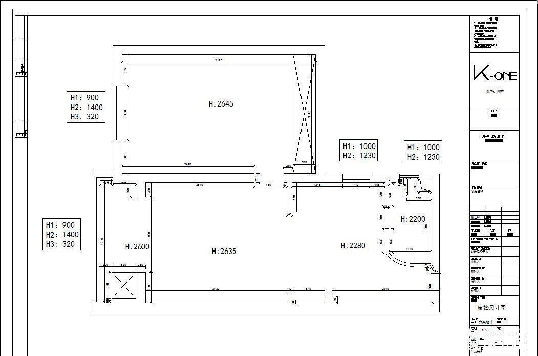
先从原始图看起
改造后的布局图,把卧室改成主卧+客厅,入口处的卫生间不变,厨房移到入门处改成一字型厨房,原先客厅的位置改成儿童房,餐厅和厨房连在一起。
进门后的走廊改造成了一字型厨房,不占用其他空间单另做一个厨房,并且利用吊柜增加收纳空间,缺点是要注意平时做饭时油烟的问题。
入门处右边是卫生间,整体风格为白色,白色的台面搭配木色柜面,地面是仿木纹瓷砖的地板,整体干净整洁。
镜面柜和角落的玻璃隔板都是卫生间的收纳亮点,并且特意开了一个小窗户,保证通风换气良好。
在厨房拐角处,做了一个卡座的设计,卡座上面是百叶窗,墙上定制的开放式收纳柜充当了餐边柜,这个角落的空间利用非常棒,一个简单的餐厅就这样成型。
客厅非常简洁明亮,没有多余的装饰,为了让客厅显得明亮,大量留白了的背景墙,中间还安装一排的射灯。
电视背景墙后面就是主卧,白色的卧室门可不是推拉样式的,是左右滑动的移门,时尚简单又节省空间。
主卧由于空间问题,装修很精致,电视柜和衣柜是一体的,亮点是床头灯,充满温馨浪漫的气息。
餐厅的百叶窗后面是儿童房,床下面是一排可拉出的抽屉,加上旁边的收纳柜,房间虽小也不会凌乱。
儿童房的旁边是阳台,只安装一个洗衣机,把阳台和儿童房相通,扩大房间的空间,平时可以在这里晒衣服,也是小孩玩耍的空间。
【 小户型|48㎡一房一厅改造成两房两厅,一点也不拥挤,设计师太棒了!】本文内容来源于网络,如有侵权请联系删除,谢谢!
推荐阅读
- 屋主|56㎡小户型老房改造,小而美的设计!
- 现代风|168㎡现代风,带着浓郁的归属感与愉悦感
- 深色|155㎡简约风,承载着三代人的生活,不花哨让家务少一半
- 混淆感|146㎡北欧经典白色三居室,诠释令人心醉的优雅
- 饱和度|173㎡轻奢新中式,古典和现代的碰撞,唯美浪漫!
- 小钱|游点好笑!收手机的新方式,一抓一个准!这老师怕是柯南看多了?
- 背景墙|97㎡现代风,以时尚打造空间,以新颖突出特点
- 地板|160㎡四居室,玄关比我家卧室都大,这才是真正的低调奢华有内涵
- 公示|一处体育中心项目、一处小型口袋公园!市北两项目规划公示,配套升级
- 碧桂园|小城市的房住不炒,遇上返乡置业
