简约|144平简约硬朗现代三居室,塑造简单而不平凡的优雅空间
业主为一家两口年轻夫妇,男主人经常在外地工作,长期居住在家的只有女主人,所以,设计师将整个空间打造的更开阔,更加注重空间内人与人的交流与沟通。
客厅是家庭住宅的核心区域,现代住宅中,客厅的面积最大,空间也是开放性的,地位也最高,它的风格基调往往是家居格调的主脉,把握着整个居室的风格。因此确定好客厅的装修风格十分重要。可以根据自己的喜好选择传统风格现代、现代风格、风格、中式风格或西式风格等等。
以深灰色和棕色为主的现代风客厅里,简约是厚度,硬朗是气质。两者结合,成就一个简单而不平凡的优雅空间。
卧室是人们休息的主要处所,卧室布置得好坏,直接影响到人们的生活、工作和学习,所以卧室也是家庭装修的设计重点之一。卧室设计时要注重实用,其次才是装饰。卧室的装修还要注意它的颜色搭配以及材质选择,一起都要以舒适为主。
卧室的设计简洁大方,这里是主人们休息的空间,不需要太多装饰,一面精致的床头背景墙足以。大面积的落地窗,让主卧拥有着绝佳的视野。
卫生间常见的问题就是阴冷、潮湿,这样的卫生间很容易滋生细菌,到了夏天还会出现异味。如果你家的卫生间足够大,一定要做好干湿分离。现在很多家庭都是暗卫,都是没有窗户的,如果不做干湿分离,卫生间就会处于长期的潮湿的环境,很容易滋生细菌的,这样就会影响我们的身体健康了。
全景落地窗浴室,柔和的自然光落在脸上,温柔又美好。一边泡澡,一边欣赏窗外的风景,生活的美好不过如此。
餐厅是大家共进餐食的场所,占地面积不一定要大,但它在装修设计时也是有很多讲究的。餐厅装修风格有哪些?一般都选择简约的装修,应以素雅、洁净材料做装饰,能营造出一种清新的氛围,还能增加温馨的气氛。
考虑到目前常住人口仅两人,且男主人长期外地工作。长型的吧台便成了女主人的餐桌,偶尔做一次烘焙,喝喝下午茶。充满嵌入式电器的西厨,简直是女主的超爱,让女主人的好厨艺得到了更大的发挥。
很多人追求简约大方,但是简约厨房不是说对厨房的实用功能让步,而是在设计中摒弃不必要的繁文缛节,留下最实用、本质的东西。
黑色的中厨,尽显简约时尚之感。宽阔的大厨房,为这个家带来了足够的功能需求和生活空间。
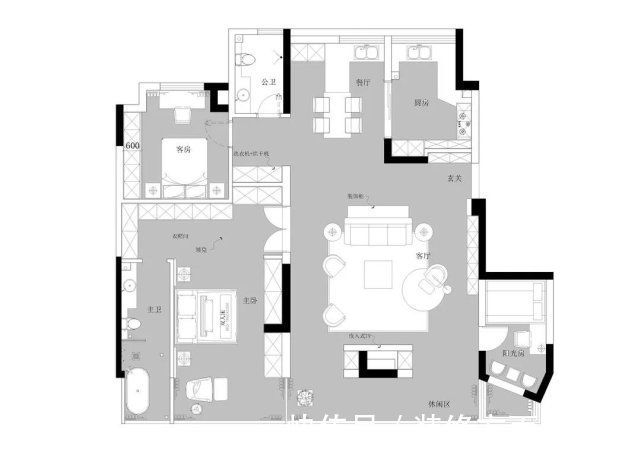
【 简约|144平简约硬朗现代三居室,塑造简单而不平凡的优雅空间】户型图
推荐阅读
- 深色|155㎡简约风,承载着三代人的生活,不花哨让家务少一半
- 卫生间|129平现代美式三居室,打造出一个舒适又温馨的美式家
- 三居室|118平现代风三居室,一个简单而纯粹还原生活色彩的家
- 郑州|买房月供曝光!郑州最新平均工资8694元,撑得起房贷么?
- 石家庄|144平的面积,无人值守棋牌室,这是如何做到的?
- 简单感|现实的平衡取舍,才是生活之道!143平现代风格设计欣赏!
- 她家148平米,进门就被玄关迷住,不做吊顶跟背景墙,阳台超漂亮
- 修建|精选10套三层户型图纸,占地面积均不足百平,尤其适合新农村修建
- 南通|拍卖成功!江苏南通一处197平住宅192万成交!
- 购房置业|农村建新房就选这套四层别墅,占地100多平,8间卧室人人都有地睡
