大户型|55㎡现代简约风装出大户型的“态度”,坐拥美爆厨房、独立浴缸
充满空灵感的室内装修总是带着简约的风情,在室内的大面积格局里呈现出非同凡响的宽宏和视觉效果。就算是小户型也能够展现出大户型的装修态度,在空间里灵活地使用每一个格局的活动范围,使其增强到最大化,在室内享有宽敞的生活空间。

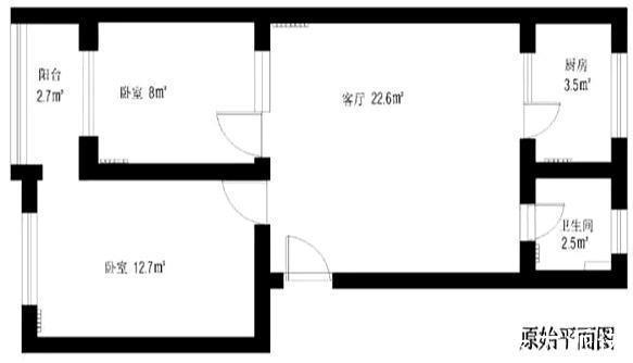
案例:55平欧式简约时尚空间居住成员:大人x2房屋面积:55㎡房屋类型:小户型空间格局:厨房、卫生间、卧室X2、客厅、阳台主要建材:瓷砖、系统柜、木皮、油漆、铁件、玻璃、大理石、石材、喷漆、镀钛铁件
室内的活动空间被分割成几个部分阳台的区域更多了,一些绿植的装点,这样整个画室都搬到阳台上,充分的感受阳光的洗礼,而客厅的位置大量的留白更能够彰显出空间本身的空旷。这样精致的处理方式更能够让室内的环境变得整洁一些。
简约风格的装饰特色就是在于绿植和一些细小的装饰品搭配呈现在空间的状态,是那种让人觉得精致而又不过于花哨的。选择我路比较繁琐但线条感更为流畅的沙发,搭配这样的空间是最为合理的。
在一些细节的中式上,老旧的木质家具能够跟室内的空间形成一种呼应,大盆的绿色植物并不需要职业多么繁茂,仙人掌这种科目的装饰品就能够呈现给空间最好的态度。在一些装饰绘画和一些干花的搭配上,应该选择满天星或者是勿忘我之类的。
墙壁上的一些空白区域可以选择小型的绘画作为装点,更能够凸显出家具的品味,也更预示着主人非常注重细节。
室内的格局主张南北通透的光线元素,所以在中间不需要加深太多的格挡,反而是应该更注重室内空间的合理运用,在边角处和凹槽处增添一些功能区域。
像餐厅的部分放在一个空当的隔断区域,调整整体的室内格局,让餐厅看起来更加宽敞,每天家人休息放假的时候上班累了一天,回到家里聚餐的时候就是一家人最欢乐的时光。
这个区域的使用方式一定要着重每个人的感受,宽大的餐桌搭配舒适的餐桌椅,黑白双色的经典搭配是恒久不变的时尚元素,加上一些墙壁装饰和柔软的布艺,作为室内的主要装饰特点,更能够呈现温馨时尚的家居氛围。
厨房的区域木色的装饰搭配灰色的墙壁贴死整体的空间,呈现出一种商务之中透露着温馨的质感,隔断的地方放上一个水池用来沏茶或事当做茶水台都非常的方便。
冰箱嵌入橱柜的设计风格非常符合当下需求的空间,在空隙的地方可以增加几组墙壁,嵌入式的操作台。内部存放一些生活用品或者是收纳一些大型的物件都是非常不错的选择。
而在室内床铺的装点上,更应该着重整体的需求环境,一些细小的装饰引得光源在室内非常美丽的绽放,白色的木质家具更能够和蓝色的柔软布艺形成一种非常柔美的色彩搭配。
推荐阅读
- 屋主|56㎡小户型老房改造,小而美的设计!
- 现代风|168㎡现代风,带着浓郁的归属感与愉悦感
- 施工者|不管家多大,装修时做好这12处细节,美观与舒适并存,幸福感提升
- 深色|155㎡简约风,承载着三代人的生活,不花哨让家务少一半
- 混淆感|146㎡北欧经典白色三居室,诠释令人心醉的优雅
- 大悦城|家里这两个地方别漏了贴瓷砖,许多人为了省钱,入住就后悔了
- 饱和度|173㎡轻奢新中式,古典和现代的碰撞,唯美浪漫!
- 住宅|现在买房,选“高层”还是“低层”好专家20年后差别很大
- 背景墙|97㎡现代风,以时尚打造空间,以新颖突出特点
- 宝龙地产|银行大厦几十层高,能“物尽其用”吗?各个楼层都是干啥的?
