高级感|成都夫妻家的新房火了,坚持全屋“留白”,却有藏不住的高级感!
作者:美家手记
在很多人看来,背景墙只刷白的这种效果,基本等同于“家徒四壁”的穷装风,不仅单调无味,而且跟豪华高级这样的词,一点也不沾边。
但有的时候只要设计得好,或许会有意想不到的效果。所谓大道至简是也。
像本期要分享的案例就是如此,位于四川成都,套内面积101㎡,屋主是一对年轻的小夫妻。装修上,他们坚持全屋“留白”,却有藏不住的高级感。很多人不解,但仔细寻思会发现,如同国画和文学艺术,都有留白技法的运用,从而使得整个作品变得更有神韵,本案也一样,不信一起来看看吧。
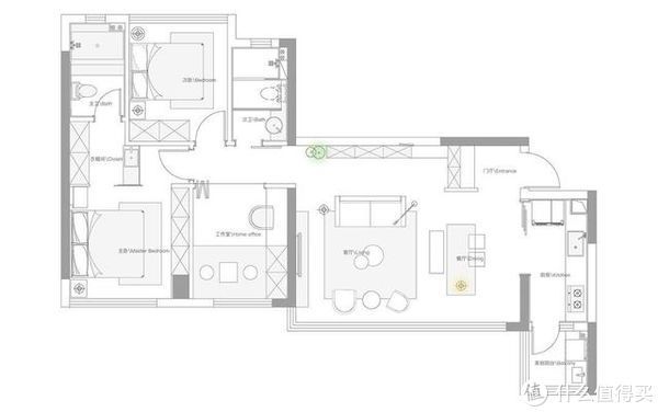
平面图

户型结构一般,存在问题有,入户为一通到底的狭长走廊,一个是利用率不高,另一个是私密性不强。基于此,屋主“无中生有”,坚持自造一个玄关,这样实用得多。
另外就是客餐厅为横厅结构,屋主打通纳入了与之相邻的附属阳台,如此显得敞亮;
最后就是主卧和书房之间的隔墙,改用柜体来代替,利用率会高很多。当然,客卫门洞往左偏移的微调也不错,下面我们来看实景。
入户
如前所述,入户进门是一条“一通到底”的走廊,即入户房门正对着,以卧室为主的私密区,为了改善这点,同时也是为了提高利用率,满足进出门,鞋子和衣物的收纳需求,就自造了一个玄关隔断。
同时,该玄关隔断,不仅自成一个相对独立的空间,设计还非常人性化,比如没有拉手的木色平板门,不仅质感温润,而且看着干净利索。重要的是,右侧还设置了镜面门,取代了常见的穿衣镜,方便进出门,整理衣着形象和仪容仪表。另外,一体化的卡座式换鞋凳也不错,且下面预留了码放鞋子的留空区,加上置物隔板存放钥匙之类的临时小物件,功能强大不说,细节还考虑特别周到。
需要补充的是玄关背景墙,选用长城板,也就是立面带有竖条纹格栅样式的效果,看着会上档次很多。
客厅

进门左转就到了。对面是电视墙,直接留白,配上底部灰色系的材质,再嵌入灯光做造型设计,看着既简洁大方,又富有禅风雅韵的高级质感。
当然,大面积的白,从客厅整体来看还是有些单调,屋主就选用了很多,简约高颜值的软装家具来润色,比如灰色的布艺沙发,和原木材质的摇椅,以及茶几、餐桌椅兼柔美的窗帘等等,便能营造一个温馨自然,令人放松解压的舒适氛围。
另外,这里需要补充一下家具的格局,我们知道传统结构,通常都是沙发正对着电视墙,但是这里以茶几为中心,把沙发挪到了右侧,再加上左侧的座椅,就成了一个对称式的结构,好处在于,不仅可以创建一个沟通与交流无碍的空间,无论谈事,还是闲聊唠嗑,都非常的轻松方便,而且布局本身就非常灵活。
推荐阅读
- 现代风|168㎡现代风,带着浓郁的归属感与愉悦感
- 施工者|不管家多大,装修时做好这12处细节,美观与舒适并存,幸福感提升
- 混淆感|146㎡北欧经典白色三居室,诠释令人心醉的优雅
- 灰尘|家中阳台不要装推拉门了,装这种更实用个性,不得不感叹太聪明了
- 成都|双限当道的2022年,成都还有这些豪宅新面孔
- 简单感|现实的平衡取舍,才是生活之道!143平现代风格设计欣赏!
- 木纹板|装修案例欣赏:小北欧风格的居家设计,简洁的同时又不失温馨感!
- 成都|“房产税”快来了?专家提出“免征标准”,超出面积要交纳1.2万
- |2022年,成都买房5点建议值得收藏
- 香港|好住 全新体验!住在景区里是什么样的感受?
