储物柜|53平米小户型,门厅打满柜子,全屋用玻璃门做隔断
【 储物柜|53平米小户型,门厅打满柜子,全屋用玻璃门做隔断】齐家小菜今天分享的是一套53平米的小户型一居室的装修案例,设计风格独特,收纳空间也很完善,合理的功能布局让整个居室看起来明亮通透,一点都不显得拥挤,希望今天的案例能够给买了小户型的你带来一些灵感。
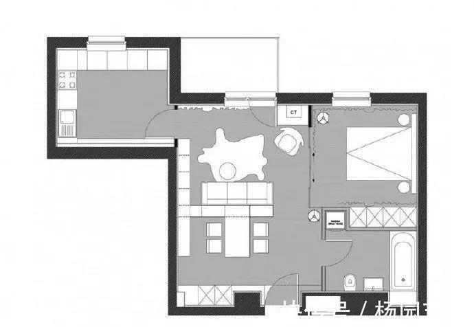
平面布置图
站在客厅视角可以看到进门没有玄关,直接就围着门边的墙壁打了一排储物柜,满足家里的收纳功能。
餐厅和客厅之间的关系设计的很巧妙,绕着沙发做了一个L型的储物柜,既可以当做沙发的靠山,又可以做收纳,上面摆上相框或摆件,又可以当做展示,好看又实用。
餐桌跟沙发柜是连接在一起的,落地灯和台灯的搭配使用,可以使整个餐厅环境亮度适宜,创造出一种温馨舒适的就餐氛围,既满足了主人的需求也让光的空间更立体。
全屋整体都没有做吊顶,水泥天花板直接暴露在外面,带着一丝工业风的粗狂质感。一面蓝色的背景墙给家里增添了安静和神秘感,将置物架上墙,放上绿植和书籍,立刻就让静谧的墙面变得生动有趣起来。
厨房以白色和原木色为主色调,干净清爽,L型的橱柜比较适合小户型,在最大程度上利用了空间,拥有足够的收纳和储物能力,一切看起来都井然有序,眼光透过玻璃照进来,亮堂得很,做起饭来心情也会很愉悦吧。
卧室与客厅之间打掉实墙,用一道玻璃门隔断两个空间,通透敞亮还不占空间,拉上窗帘又可以保证卧室的隐私性。
卧室沿用客厅的风格,深蓝色的床头墙和床品与客厅背景墙形成呼应,两盏床头台灯可以随意旋转位置,满足不同的照明需求。旁边整面墙的开放式衣柜,上面还挂了一张布帘,避免积累灰尘。
卫生间的镜前灯精致又优雅,可以让人在昏暗的光线下也能看清自己的模样,镜子下方的隔板,是用来摆放洗漱用品的,这样可以节约不少位置,不规则的蓝色和灰色墙面,还是很少见的,我觉得特别有个性。齐家栗子提供更多装修资讯,喜欢我的朋友记得收藏和关注哦!(素材来源网络,无法核实真实出处,如有侵权,请直接联系齐家栗子删除。谢谢!)
推荐阅读
- 屋主|56㎡小户型老房改造,小而美的设计!
- 小钱|游点好笑!收手机的新方式,一抓一个准!这老师怕是柯南看多了?
- 公示|一处体育中心项目、一处小型口袋公园!市北两项目规划公示,配套升级
- 碧桂园|小城市的房住不炒,遇上返乡置业
- 小户型|发现丈夫赠人房产 妻子怒讨买房款
- 小房间|参观140㎡大婚房,朋友都夸餐边柜有档次,我却更喜欢主卧的飘窗
- 楼层|对于买房选楼层,一旦你忽视这5件小事,就只能买到“垃圾楼层”
- 木纹板|装修案例欣赏:小北欧风格的居家设计,简洁的同时又不失温馨感!
- 二手房|拖垮你的不是高房价和高压力,而是鸡毛蒜皮,不拘小节,更自由
- 购房置业|对于买房选楼层,一旦你忽视这5件小事,就只能买到“垃圾楼层”
