一日三餐|97平二居室杏黄色系充盈整个空间明亮舒适,很是舒心惬意( 二 )

进门设置了独立的玄关,空间简洁大气,白色显得空间非常靓丽
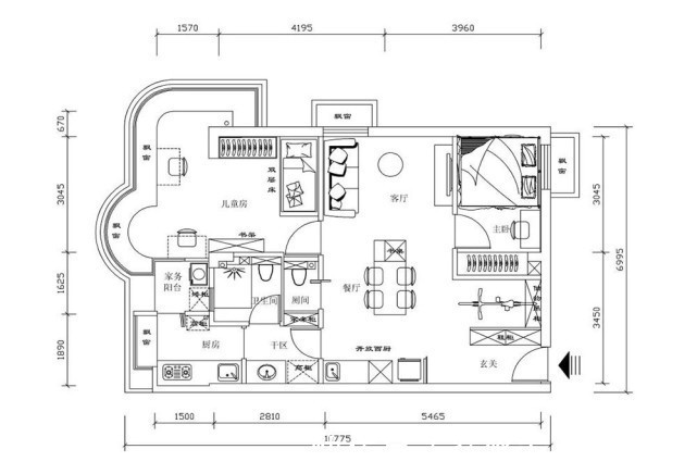
【户型图】空间格局为两室两厅一厨一卫,依柱设计的餐桌客户夫妇非常满意
推荐阅读
- |最高暴涨70万!宁波二手房市场即将回暖?
- 管道|为什么说:再穷也不买二层?了解这些弊端之后,就知道多糟心了!
- 万科|首付745万的房没了还要赔500万!买二手房签合同时注意这8个细节
- 二手房|古交市首笔国有土地使用权出让收入征收落地
- 卫生间|129平现代美式三居室,打造出一个舒适又温馨的美式家
- 三居室|118平现代风三居室,一个简单而纯粹还原生活色彩的家
- 长沙|本周末长沙预计2项目开盘!北二环旁毛坯盘推新
- 二手房|12月交楼37899套,恒大居然复活了
- 郑州|买房月供曝光!郑州最新平均工资8694元,撑得起房贷么?
- 石家庄|144平的面积,无人值守棋牌室,这是如何做到的?
