衣帽间|难怪这么多人喜欢横厅设计,看了他的165㎡大平层,我被迷住了( 二 )
再搭配轻奢感十足的挂饰以及床品,整个主卧空间予人以恬淡又惬意的居住感。

▼衣帽间
同时主卧利用了长虹玻璃推拉门,打造了一个步入式的衣帽间,内嵌了灯带和射灯,满足衣帽间的采光问题,试问哪个女主人会不喜欢拥有一个衣帽间呢?

▼走进衣帽间,再往里走,可以看到一个宽敞规整的主卫空间,灰白之色搭配黑色边框,营造了舒适的居家氛围。
▼儿童房
儿童房的空间设计,是为家里的小女儿打造的空间,因此在氛围设计上,更显少女感,天真烂漫的色彩,搭配卡通元素,营造了一个简单又具童心的房间。
▼小小的床头柜,还有自然的挂画,以及床头玻璃灯的渲染之下,让儿童房的小角落,都有温馨感。
▼书房
步入书房空间,更见一派艺术氛围。值得一提的是,后排这个定制式的书柜设计,让书籍都能以端正的姿态进行摆放,也成为书房里的点缀。
▼一组圆形镜子,让书房空间更有通透开阔之感,再加上挂画和摆件的点缀,整个书房素雅之余,更有高级感。

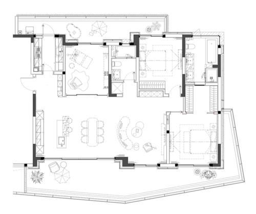
▼平面布局设计图
原本便是大平层空间,再搭配横厅式布局,让整个功能区域更显开阔之感,不得不说这样的家,住起来真的舒适又自由,难怪这么多人喜欢“横厅”式布局。
那么,如果是您的话,您会不会也选择横厅式的家呢?欢迎评论区留言讨论。
推荐阅读
- 集体经济|征拆赔款找,查了才知有这么“多”…
- 购房置业|呼市人为什么这么期待第四代万达广场—城南万达广场
- 烤漆面|老公坚持餐厅不做柜子,原来用吊兰做隔断可以这么漂亮,学到了
- 万科|看了塔吊安装和拆卸的费用,难怪烂尾房开发商直接跑路啥都不管了
- 购房置业|为什么买房要牢记“远二近三”原则?懂行的人都这么做,全国通用
- 购房置业|2021年爆雷的开发商这么多,2022年还能不能买房了?
- 搭配|云合设计——逆天的设计!90㎡的房子也能这么好看,我跪了!
- 乳胶漆|等买了房,就照他家这么装,全屋不吊顶,不做背景墙,越看越耐看
- 装修|家里这两处万万要全贴瓷砖,难怪好处多,后悔我家一早没听劝
- 衣帽间|180㎡大平层装成北欧风,不光过道打了整体柜子,独立水吧给力
