打通|120㎡两房两卫,餐厨客空间打通,5.6W打造原木居酒屋
分享一套面积为120平米的日系原木风格,空间设计简约大方,运用大量原木家具,使得整个空间自然舒适,简洁干净。简约大方的客厅设计,细节把握精准,还不失精致的设计感,足足撑起了整个家的颜值,细节装饰上也更具生活品味。
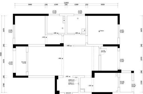
原始户型△
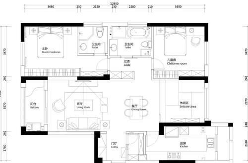
平面布置△
户型:三室一厅
风格:日式原木
面积:120㎡
/玄关/
左手边整面鞋柜,收纳大会。右手储物间,全靠实力改造空间。玄关依然宽敞,心态却是舒畅。
/客厅/
客厅整个空间色调统一,白色与原木色的搭配简单干净,吊顶很好地平衡了颜色比例,很佛很平静。没有过多的装饰,节制却精致。
/餐厅/
客餐厅一体,简单的木质餐桌椅,质朴的吊灯,两个小菜一壶竹叶青甚是快哉!
过道上点缀深蓝色门帘,空间层次丰富起来,也更显灵动飘逸。
/卧室/
自然安宁的卧室,营造理想健康的睡眠环境。原木衣架与整个环境融为一体,整面的储物柜保证房间的干净整洁。
/儿童房/
粉色的公主城堡,房间主体部分仍是原木色,易变更部分如床品窗帘,可以根据小朋友的喜好更换,让房间可以随着孩子一起长大!
/厨房/
白色的厨房,视觉上大气整洁。大理石地砖取代地板,打理起来更加轻松。小白砖错落,黑色橱柜把手十分精致。超多的收纳空间完美装下你的美食梦!
/卫生间/
【 打通|120㎡两房两卫,餐厨客空间打通,5.6W打造原木居酒屋】日式小清新风,小白砖营造复古潮流,木色元素增添自然气息。清爽的干湿分离,整洁更易打理。
推荐阅读
- 屋主|56㎡小户型老房改造,小而美的设计!
- 现代风|168㎡现代风,带着浓郁的归属感与愉悦感
- 深色|155㎡简约风,承载着三代人的生活,不花哨让家务少一半
- 混淆感|146㎡北欧经典白色三居室,诠释令人心醉的优雅
- 饱和度|173㎡轻奢新中式,古典和现代的碰撞,唯美浪漫!
- 背景墙|97㎡现代风,以时尚打造空间,以新颖突出特点
- 地板|160㎡四居室,玄关比我家卧室都大,这才是真正的低调奢华有内涵
- 棚户区改造|开盘预告|合肥又有6盘要加推,均价1.39-2.54万/㎡全都有
- 小房间|参观140㎡大婚房,朋友都夸餐边柜有档次,我却更喜欢主卧的飘窗
- |73㎡复古风两居室,年轻夫妻的高品质生活
