打开方式|瞧瞧别人家的自建房,这才是正确的打开方式,舒适度不比豪宅差
随着人们生活水平提高,有不少年轻人在外打拼,然后寄钱回家盖房,随随便便就要好几十万,钱花了不少,但最终盖出来的房子一言难尽,外观都是千篇一律的造型和“豪气”,有些房子内部结构极其不合理,舒适度和美观性更是欠缺。
瞧瞧别人家的自建房,外观看起来普普通通,但是内部装修极其舒适,一点不比豪宅差,这才是自建房正确的打开方式。
这套房子位于越南一个古镇,占地面积只有75㎡,总共三层,四间卧室,5个家庭成员,三代同堂,可以生活得很安逸且舒适。
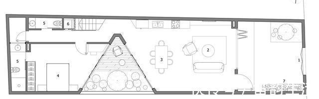
从结构图可以看出,房子属于长方形布局,这在南方地区很常见,尤其街道两旁的房子,如果按照常规的设计,房子的后半部分光线暗。
这套房子在中间设计了一个三角形的天井,每个房间对着天井设计大面积的落地窗,就能保证室内拥有足够的通风和采光,而且每层都有一个卫生间,生活十分方便。
建筑正面图
房子外观没什么特别的,白墙黑瓦,跟当地的建筑十分融合,也不会显得特别突兀。
房子正面都设有大面积的窗户,保证室内的通风和采光,外面再加一层百叶窗,关起来就能保护隐私。
这套房子每一层都有绿色景观设计,二楼窗户外延出去的露台,用来种植矮型绿植和垂吊植物。三楼的露台设计成一个小庭院。
建筑俯拍图
从前院进来,看到客餐厨一体的空间,大门口是由单侧门和折叠玻璃门组成,天气好的时候,打开折叠门,让室内通风透气,阳光照进室内。关上折叠门,可以从侧边的门口进入家中,同时不影响室内采光。
一楼地面统一铺了木纹砖。在门口摆放了一张吊篮椅,坐在这个地方晒晒太阳、吹吹风,生活相当惬意。
从外面看,围墙跟一楼同高,关上大门,路人是看不见屋内场景的。

客厅没有摆放大型的连体沙发,选择了两张单人沙发,餐桌就在旁边,有5张餐椅。客厅、餐厅和厨房作为家人聚集的场所,放在一个空间里,互动性更强,更有利于家人之间相互沟通,增进感情。

从厨房看向院子
从卧室看向院子
由于屋主的父亲行走不太方便,就把父母的卧室装在一楼,跟客厅隔着一个院子,院子里种了一棵高高的树,还有一些矮型绿植。
推荐阅读
- 贷款|5月起,“2道铁令”,今后这1种买房方式再也行不通了
- 小钱|游点好笑!收手机的新方式,一抓一个准!这老师怕是柯南看多了?
- 墙面|过道能''挤''出空间 5种方式帮你充分利用每一寸,档次蹭蹭上涨
- 住房公积金|买房三十六计之 按揭贷款买房还款方式有几种?哪种方式最划算?
- 置物架|今后有房了,厨房打死也不装壁柜了瞧瞧下图,真是让我大开眼界
- 空调|多联式空调室外机的布置方式及空间要求
- 权利|警告:通过这些方式取得商业汇票,将不享有票据权利,一般情况下
- 思维方式|打印纸都要双面用,房企真的“半死不活”了?
- 床头|越来越多人卧室不放床头柜,瞧瞧人家这么“弄”,比床头柜实用
- 轻奢|绿地东北亚国博城100㎡3室2卫一种美好的生活方式轻奢风格
