住宅|604㎡的极简工业风,诠释至简至美的生活( 二 )



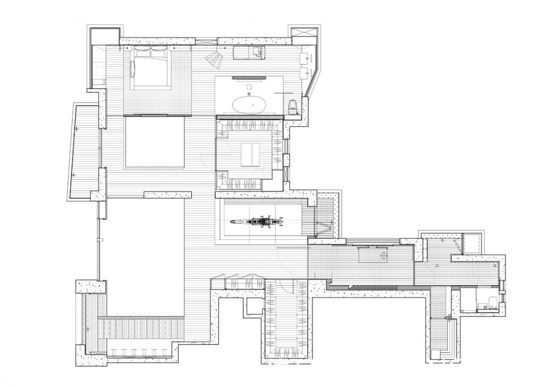
平面图:

项目空间信息:
空间名称:澳门私人住宅
空间类型:住宅空间、复式住宅设计
空间地址:澳门 氹仔
设计公司:DannyCheng Interiors Ltd
空间面积:604平方米
空间主材:水泥、石材、镜子、玻璃、木材、木地板、混凝土涂料
图片来源:SOHO设计区网站
推荐阅读
- 屋主|56㎡小户型老房改造,小而美的设计!
- 现代风|168㎡现代风,带着浓郁的归属感与愉悦感
- 深色|155㎡简约风,承载着三代人的生活,不花哨让家务少一半
- 混淆感|146㎡北欧经典白色三居室,诠释令人心醉的优雅
- 饱和度|173㎡轻奢新中式,古典和现代的碰撞,唯美浪漫!
- 住宅|现在买房,选“高层”还是“低层”好专家20年后差别很大
- 背景墙|97㎡现代风,以时尚打造空间,以新颖突出特点
- 地板|160㎡四居室,玄关比我家卧室都大,这才是真正的低调奢华有内涵
- 棚户区改造|开盘预告|合肥又有6盘要加推,均价1.39-2.54万/㎡全都有
- 小房间|参观140㎡大婚房,朋友都夸餐边柜有档次,我却更喜欢主卧的飘窗
