上下楼|11.6×10.7米带电梯农村二层别墅,这样的设计是不是有点奢侈?
现代人的生活方式改变了,也是会越来越享受了,特别是在吃住方面。新农村新建的房子也是更加城市化、现代化,除了设有必要的吃住空间外,还设有娱乐、健身、读书等功能空间以及卧室套房设计,主人居住空间私密舒适。更高级一点呢,室内还设有电梯,节省了上下楼的时间,搬运大件物品也容易很多,而且高层的楼房相对安静,如果老人房设在楼上,那么有了电梯,家中老人上下楼就非常方便了。
建筑面积:257.7㎡
占地面积:120㎡
建筑尺寸:11.6m×10.7m
建筑结构:框架结构
参考造价:32万(室内装修费用另计)
【 上下楼|11.6×10.7米带电梯农村二层别墅,这样的设计是不是有点奢侈?】

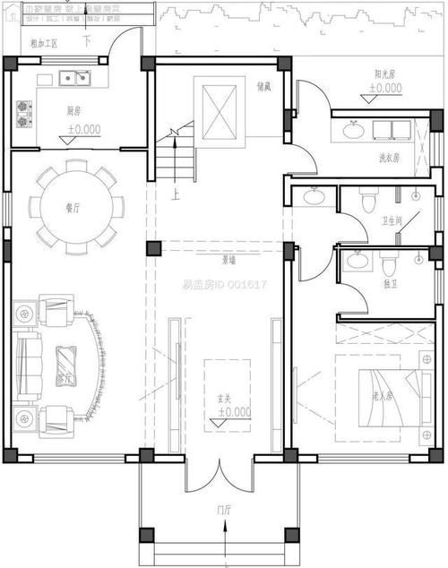
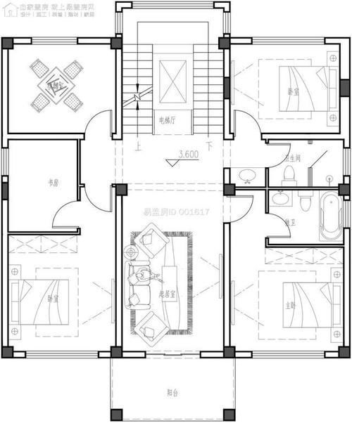
平面方案图
一层玄关,东侧老人房独卫,洗衣房;西侧客厅餐厅厨房。
二层进入楼梯就是大客厅,3间卧室,1书房1,棋牌室,1阳台。
推荐阅读
- 上港|从上港星江湾现场发来一条项目新消息,请查看
- 心塞|5个月装修一套房,硬装让我喜出望外,结果家具一上全废了!心塞
- 安置|上城区紫阳街道加速回迁安置 焕新美好家园
- 购房置业|经济学家:老百姓60%的钱花在房子上很危险!网友:说得很对
- 购房置业|上海女子拍下对楼住户家无敌露台,超大空间网友酸了:买房送操场
- 施工|面宽均为12米的两栋自建房,简单施工易,造价25万上下
- 上海市|上海今日10盘同日摇号,市区4盘日光!最高认购比392%
- 碧桂园|小城市的房住不炒,遇上返乡置业
- 别墅|参观亲戚上海的豪宅,别墅硬是住成农村房,真是糟蹋了好房子
- 旧城改造|5万亿旧改来了,20年以上的老房子再度吃香?这两类人有福了!
