布置|360㎡现代高级灰,舒适优雅的别墅,生活令人羡慕( 二 )

▲女孩房里布置休闲沙发与小茶几,墙面挂上色彩鲜艳而时尚的抽象装饰画,也让空间显得更加灵活优雅。
休闲区
▲休闲区摆上一块圆形的多圈色地毯,布置休闲沙发与茶几,后方一幅蓝色背景+白色网格线的装饰画,也让空间显得更加活泼优雅。
▲角落小边几,摆上可爱的小装饰画、还有笔筒、绘本等摆饰,也让空间更加有童趣感。
夹层
▲夹层是一个书房+绿植满布的空间,为主人提供了一个练习、看书,放松身心的惬意空间。
▲在另一侧引入自然光,种上绿植,让空间显得清新而活力。
地下室

▲地下室是个多功能的空间,布置沙发、壁炉等设计,整个空间现代现代优雅而时尚高级。

▲摆上一张大茶台,布置树桩+亚克力的凳子,台面上摆上精致的茶具,也让空间显得更加儒雅禅意,为主人品茶聊天提供了一个私密舒适的空间。
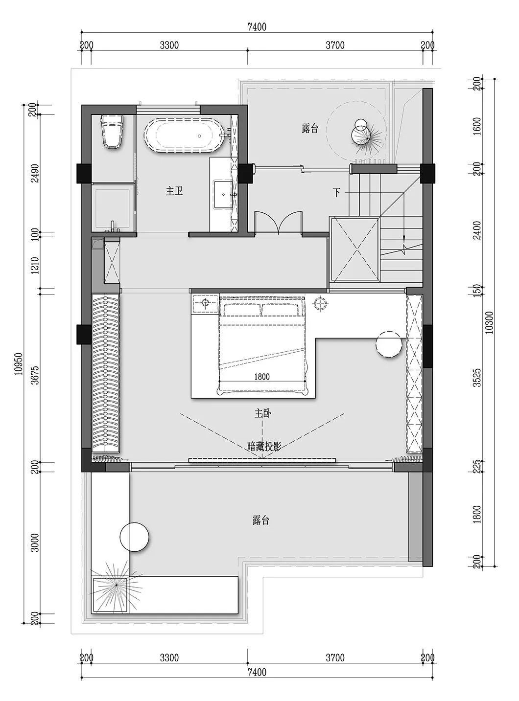
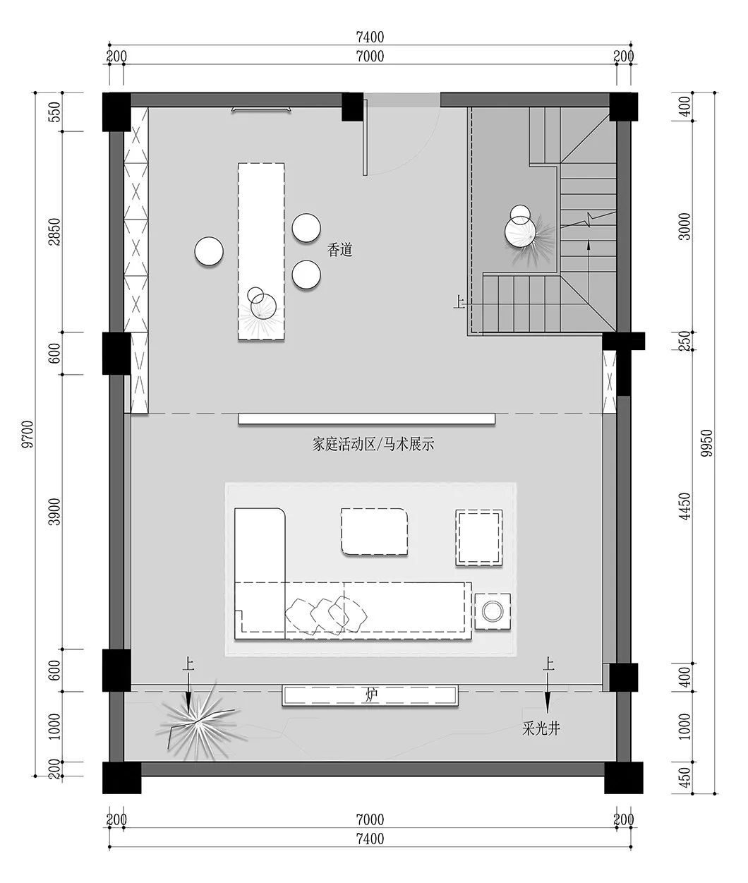
平面布置图




设计:孙文设计 ,点评:设计馆
推荐阅读
- 屋主|56㎡小户型老房改造,小而美的设计!
- 现代风|168㎡现代风,带着浓郁的归属感与愉悦感
- 深色|155㎡简约风,承载着三代人的生活,不花哨让家务少一半
- 混淆感|146㎡北欧经典白色三居室,诠释令人心醉的优雅
- 饱和度|173㎡轻奢新中式,古典和现代的碰撞,唯美浪漫!
- 背景墙|97㎡现代风,以时尚打造空间,以新颖突出特点
- 地板|160㎡四居室,玄关比我家卧室都大,这才是真正的低调奢华有内涵
- 棚户区改造|开盘预告|合肥又有6盘要加推,均价1.39-2.54万/㎡全都有
- 小房间|参观140㎡大婚房,朋友都夸餐边柜有档次,我却更喜欢主卧的飘窗
- |73㎡复古风两居室,年轻夫妻的高品质生活
