外栏杆|赚钱了,要回家盖一栋这样的别墅,带开放式车库,让邻里都来羡慕
赚钱了,要回家盖一栋这样的别墅,带开放式车库,让邻里都来羡慕!
11.3X13.6米农村小别墅,带开放式车库,关键还只要17万的造价,亲朋不来羡慕我都不信了!
今天小编跟大家带来的是一套农村自建别墅案例,这套别墅的占地面积尺寸为11.3×13.6米、占地面积:108.48平方米、建筑面积:224.18平方米、建筑高度:11.1米、建筑结构:砖混结构、毛坯造价:17万左右。
1、效果图
这是设计师出的效果图,看着图片后觉得有点偏暗,于是在建造的时候把主体色系调亮了一些!
这是调整之后的效果,是不是看上去要舒服很多!
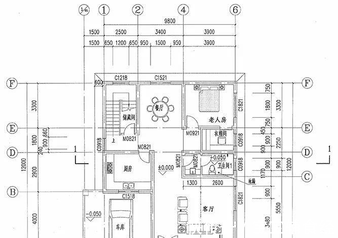
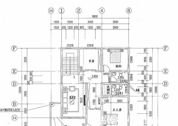
2、平面图

3、建造过程
出了图纸后,着手打地基,前面的一篇废墟,三个月后就盖起了一栋时尚美宅!
地基打好之后,就是回填工程,回填完毕后,开始砌一层的墙体。

一层建造完成后,就需要在楼板预埋水电及钢筋了,一层层蜘蛛网一样的,确保了建筑的牢固性。

经过大约45天左右的时间,主体建筑基本成型,现在还看不出效果来哦。
工人师傅正在对坡面屋顶进行放线支模工作。


外墙抹灰之后,把原本粗糙红砖墙面掩盖起来了,显得稍微干净了一些。


现在的墙面已经刷了真石漆,效果比起之前好多了吧,拆除脚手架后,开始着手安装门窗和阳台的外栏杆。
【 外栏杆|赚钱了,要回家盖一栋这样的别墅,带开放式车库,让邻里都来羡慕】



4、同款实景拍摄图
这是我们村另一个同款别墅,现在装修全部弄完了,入住半年多了,外墙颜色与我家稍有不同,但是外形几乎一模一样。
推荐阅读
- 心塞|5个月装修一套房,硬装让我喜出望外,结果家具一上全废了!心塞
- 家具|家具展厅30余万红木家具被盗,嫌疑人竟是高学历海外留学生
- 装修|空调外机万万不能这样挂墙,若不是师傅提醒,我家都装错了!
- |外墙内保温如何施工?现场示例!萌新必看!
- 购房置业|男子为买房“假结婚”?!意外身亡后留下900万的房贷!两位“妻子”谁来还?
- 防盗窗|老公硬把阳台改卧室,在窗外加个“假阳台”!完工都夸他机智
- 摄像师|日本单身宅男9㎡小家,厕所巴掌大却有浴缸,玄关晾衣服格外整洁
- 虹口|虹口四子成绩单出炉!弘久新弘北外滩547组认购,中皇北岸锦源未触发积分
- 购房置业|55岁德国阿姨晒退休生活意外火了:全屋悠闲自在,治愈了超多人!
- 世茂|世茂璀璨天樾,整改仍不到位!大门、水系、门外建筑垃圾一片
