豪宅|她家仅两居室,却可媲美大豪宅,且收纳强大、配色高级,太漂亮了!
这是一套面积为94平的两居室!房子可以说不大,毕竟现在都以三居室为主,这样的户型,顶多住下一家两代人,于是在很多人眼里,这样的装修只能算一般,或者中规中矩,可能跟高级、大气这样的词丝毫不沾边,可是业主就这么做到了,不仅可以媲美大豪宅,而且收纳强大,配色高级,实在太漂亮了!几乎一进门就被地板给迷住了,人字形铺贴的地板肌理效果特别好,温润如玉的,光脚踩在上面很舒服。当然客餐厅设计更是漂亮,不信给大家伙晒晒,相信不会让大家失望的!
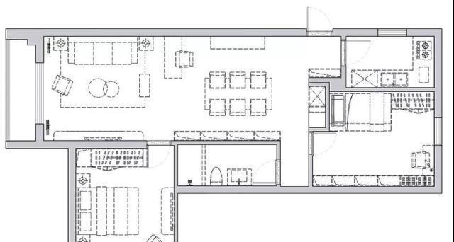
首先,这个是平面图,可以看到户型其实一般,为典型的两居室的结构,不过这些都没关系,只要设计效果好看且实用就可以了。
现在来看实景。对面就是入户玄关了,开门后,对墙的方向定制了一面白色的柜子,款式和效果都不错,漂亮,最重要的是,上下封顶式结构储物空间特别大,而且中间有预留空位放些小物件什么的,因此可以说整个设计很人性化。其它的就是这个角度对面的厨房房门了,为白框玻璃结构,很通透。至于右边墙面,预留了一个内凹的槽位专门摆放冰箱,这里利用率高一些。
来到餐厅。对面可以看到背景墙,很简洁,虽然只刷墙漆不造型,但色调是真的挺高级,再搭配装饰画,顿时有股优雅文艺范,喜欢。还有就是地面的地板,开头已经讲过,这里就不再重复补充了,总之触感特别好。
另一面就是柜子了,面积挺大的,这样一来储物空间特别足,不管是餐柜和书柜还是展示架,这里通通都可以搞定,何况右边靠墙还有一个小斗柜,因此这方面完全没有必要担心。其它的就是餐桌椅,轻巧的简约结构看起来不会有丝毫笨重之感,反而颜值高,且六人位使用空间很充足。
客餐厅的中间做了这么一款吧台,用来划分空间挺好的,而且还可以用来休闲以及学习办公什么的,因此很实用。
客厅。采光充足,而且整个空间简洁大方,很少造型,对面是沙发墙,搭配装饰画就搞定了,方便省事,效果也挺漂亮。下面则是家具了,双人位的蓝色沙发搭配白色的双拼茶几以及细腿结构的边几和地毯等等,看起来还是很精致高级的,犹如大户型一般大气迷人。
另一面是这个电视墙,延续了不造型不装饰的风格特点,既经济实惠,也简洁耐看。另外,灰蓝色的电视柜挺漂亮的,尤其是点缀了金色的线条和腿脚后,很是轻奢。
一共两个房间,这个是主卧,床头墙就不多说了,基本和前面的几个背景墙一样,以简洁大方加高级配色为主,很迷人。其它的则是家具了,睡床、床头柜、椅子、柜子等等,都营造了一股温馨的闲适风,适合休息。
另一面是这个衣柜,平开门结构,且内部格子多样,适合收纳不同种类的衣物,实用。需要补充的是柜子面板和色调挺不错,很高级也很漂亮。当然,其它空间的柜子也是一样。
推荐阅读
- 出售|梅西挂牌出售美国豪宅 2年时间增值200万美元
- 客厅|参观向华强和陈岚的豪宅,房子层高太矮了,住着不压抑吗
- 成都|双限当道的2022年,成都还有这些豪宅新面孔
- 别墅|参观亲戚上海的豪宅,别墅硬是住成农村房,真是糟蹋了好房子
- 她家148平米,进门就被玄关迷住,不做吊顶跟背景墙,阳台超漂亮
- 薄荷蓝|走进她家,才知什么叫美观与实用并存,全屋温暖又清爽,太舒服了
- 宋智雅|不只穿假货!宋智雅豪宅全是租的,公主风奢华住所都是TA在出钱供
- 融创中国|吴君如晒出自己的豪宅,跟普通人家没有什么区别,生活过得很节俭
- 乳胶漆|看她家装修,比样板房还漂亮,电视墙特别实用,值得做参考!晒晒!
- 罐罐|听我一句劝:厨房别再摆瓶瓶罐罐,学她家这样做,美观方便还不贵
