布朗熊|入户没有玄关?这样设计让人眼前一亮,打造精致时尚美式轻奢风!
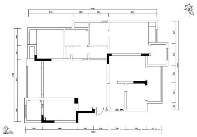
本案业主是一对刚刚步入婚姻殿堂的小夫妻。男主穿着布朗熊公仔套装在江边向女主求婚,一起去云南苍山洱海拍摄婚纱照,一起操办婚礼。这样一套温馨浪漫的家再适合不过他们了。【原始平面图】
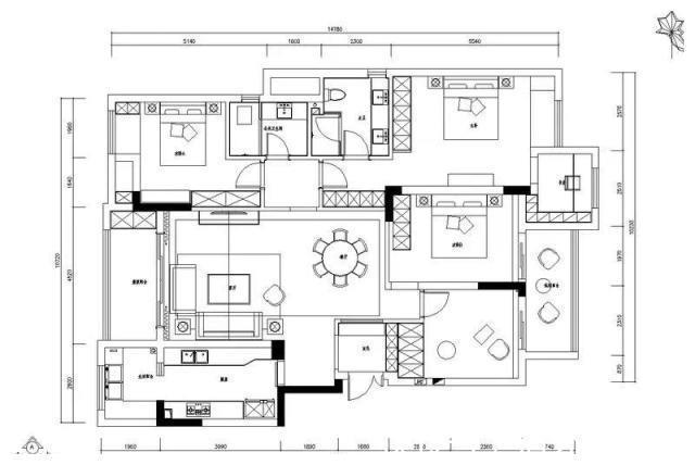
【平面布置图】
▲这个户型一个比较大的问题就是一进门没有玄关,进门直接就看到了客餐厅。所以设计师在入户位置增加了镂空玄关,不仅仅起到了隔断视线的作用,而且美观性也是非常不错。【玄关】
▲在原有的结构中,一进门一览无余同时也显得结构不够规整,在设计上添加一个镂空玄关的布局,这样既可以解决结构的方正又保留了进门宽敞的大气度。
▲金属质感的镂空隔断搭配白色的到顶鞋柜,打造简约自然的轻奢风。【客厅】
▲客厅的整体色调以灰白为主,软装搭配复古的铜色和干净优雅的白色和蓝色。让色彩的冷暖与材质的刚柔相融,营造了一种精致高雅的生活气息。
▲米咖色的背景墙设计,蓝色作为辅助色,最后通过浪漫的粉色作为点缀,整体协调统一。
▲地面选用大面积的爵士白配深色波打线,敞亮大气的同时稳住气场。精致的金属装饰风格家具,烘托精致的美式轻奢。
▲电视墙和餐厅墙是一面很长的墙,为了解决墙面完整性的问题,设计师将门洞抬高,同时电视背景墙做了相同造型的大门洞来进行呼应。【餐厅】
▲金属质感的木质餐桌椅,与整体风格呼应,提升了空间整体性的同时营造出精致而有序的生活气息。【厨房】
▲美式造型风格的橱柜设计,白色显得空间更加宽敞明亮,搭配灰色的复古砖,精致又文艺。高柜嵌入式冰箱和电器的设计也使空间完整度很高。【主卧】
▲床头做了跳色处理,舒适的软包大床,搭配浅紫色的墙面,整个主卧梦幻又高雅。【次卧】
▲浅绿色的背景墙清爽优雅,搭配白色的家具和精致的床,清新雅致。【儿童房】
▲儿童房采用大胆的撞色设计,轻松又活泼。【卫生间】
▲可爱清新的浅绿色墙砖,搭配白色的浴室柜,清新干净。(本案例来自重庆十二分装饰)
推荐阅读
- 山东省|好住│金牛岭片区的刚需户型,两梯两户还配入户花园
- 购房置业|豪横!熊磊手握3套房,仍不知足,疑购入新房,网友:楷楷的婚房
- 效果图|大熊想回自己家,竟然要戴上面具,这究竟是为什么呢
- 柜子|入户玄关这样设计,进门就是惊艳!储物功能超多,美观大气上档次
- |参观同事172㎡观景洋房,入户花园就抵个客厅,这才是豪宅呀
- 鞋子|入户没有玄关?这样设计真大气,储物隔断两不误,小户型设计典范
- |为了一套房背负骂名,错失更大的商机,熊磊值不值?
- 美式|她家122㎡的房子一入户就把人迷住,全屋堪比电影中的场景,太美了
- 入户玄关|老公花了四个月装修,入户玄关太漂亮了,电视墙更是抢眼,晒一晒
- 空间感|不管户型是否有玄关,入户鞋柜尽量参考这样设计,美观又实用
