极简|看了他150㎡的家,完全被迷住,这才是大平层该有的高级质感!
【户型分析】
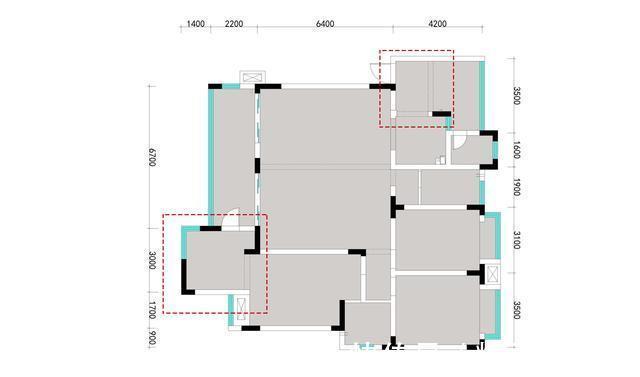
原始户型图原始户型问题:1.入户、生活阳台、储物间、厨房的位置都不太合理,需要改动。2.主卧空间不够宽敞,没有衣帽间。
改造后:1.合理规划入户,开放式的厨房设计,让空间更加流畅,视觉更加宽广。2.客餐厅一体设计,活动空间非常开阔。3.靠近主卧的生活阳台改为书房,床尾设计为大衣柜。【实景图】
玄关黑色的入户鞋柜,格调极简典雅,中间开放区域可随手放置日常包包、钥匙等,上下封闭式的设计保证充足的储物空间。
厨房再往里走就是开放式厨房的位置,整体以黑色木饰面搭配白色台面,尽显都市摩登范。增加的西厨吧台,让屋主在做饭时也可以和家人交流,让其成为家人中心交织关系的枢纽。地面也以材质进行了区分,功能空间感更强。
厨房黑白灰的色彩,演绎现代极简的极致与纯净,整个空间安静、沉稳又不失格调。
餐厅从厨房望向客餐厅,两侧的墙面都采用了和地板相似的木饰面的设计,并利用黑色的沙发实现了一些功能和空间区域的分割,空间温润自然又时尚典雅。
客厅墙面、地面以及吊顶,包括所有的家具陈设,都是走的极简风格,在简约中凸显个性。
客厅木饰面的电视背景墙,竖条的黑色装饰开放格设计让比例更加完美,整体冷静理性的深色透露出屋主对生活品质的追求。
主卧空间,简单而又明快的色彩和线条,软包背景墙上又加入了时尚且带有复古感的灯具,打造舒适的睡眠环境。
主卧其他墙面及顶面,延续极简风格的特点,营造一种简约、轻松和谐的生活氛围。
主卧卧室和书房之间的通透设计,再搭配床尾的一字型衣柜,满足储物需求的同时,整体空间设计更加宽敞明亮。
儿童房儿童房也是延续了整体典雅简洁的风格,大道至简,最简单的元素,恰是最自信的设计语言。
推荐阅读
- 大门|房子大门万万不能朝这地方开,师傅看了摇头,怪不得我家越住越穷
- 房产税|美国作为发达国家,他们为何不用混凝土建造房子原因很现实
- |看到对门挂这个,赶紧让他拆了,不然财运就要走下坡路了
- 洗衣房|这三款农村四合院设计图让不少城里人羡慕,父母看了也欢喜
- 万科|看了塔吊安装和拆卸的费用,难怪烂尾房开发商直接跑路啥都不管了
- 华侨城|CO-LAB丨极简主义自然酒店
- 乳胶漆|等买了房,就照他家这么装,全屋不吊顶,不做背景墙,越看越耐看
- 石材|2022年室内家装新趋势,极简风或成“冷门”?
- 碧桂园|盼了9年,回到新家的他们这样说……
- 装置物|卫生间别再傻傻装置物架了,聪明人都这样做,老师傅看了点头夸好
