小户型|平淡无奇的89㎡小户型,将其客餐厅全开放,瞬间变得美貌又明亮!
近两年,最火爆的装修风格莫过于北欧风了,浮夸点讲,北欧风都快统治世界了!其实北欧风之所以成为今天在世界各地蓬勃蔓延的北欧风,与漫长的时间沉淀,不无关系。
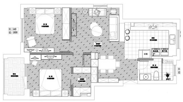
今天我们来这套89㎡优雅的北欧风,是如何征服业主眼球的?
客厅
以浅色打底,简单干净的空间里没有任何杂质,更能突出整体环境的简约。
棕黄色的皮质休闲沙发柔软舒适,搭配原木色的家具,给人一种轻柔美。
餐厅

客餐厅互通,过道用功能性的家具进行划分。
浅木色的餐桌椅搭配金属色系的吊灯,营造出清爽的视觉效果。
在餐桌的两侧分别打造了顶天入地的嵌入式收纳柜,让储物能力“更上一层楼”。
厨房
厨房与客厅之间做了个小吧台,墙上收纳架及垂坠的吊灯让整个空间颜值超高。
开放式的厨房,黑白色系搭配,让小小的厨房显得通透明亮。靠近冰箱一侧还嵌入了洗衣机,打造出一块洗衣区。
次卧
次卧空间以浅色打底,灰调高背床搭配成套灰色布艺。用粉色的窗帘点亮空间,也不至于卧室过于单调。
床尾打造了一块工作区,墙上使用造型别致的置物架,增加储物空间。
主卧
选用大胆的高饱和蓝,再通过大面积的纯色让空间更加干净明朗。

加上原木家具及北欧灯饰,在色彩的映衬下成为一种点缀。
卫生间
【 小户型|平淡无奇的89㎡小户型,将其客餐厅全开放,瞬间变得美貌又明亮!】沿用厨房墙地砖的特点,格子与几何形状满铺,空间既清新又饱满。
推荐阅读
- 屋主|56㎡小户型老房改造,小而美的设计!
- 小钱|游点好笑!收手机的新方式,一抓一个准!这老师怕是柯南看多了?
- 公示|一处体育中心项目、一处小型口袋公园!市北两项目规划公示,配套升级
- 碧桂园|小城市的房住不炒,遇上返乡置业
- 小户型|发现丈夫赠人房产 妻子怒讨买房款
- 小房间|参观140㎡大婚房,朋友都夸餐边柜有档次,我却更喜欢主卧的飘窗
- 卫生间|什么才叫好户型?来看看这5个标准,你家房子符不符合?
- 修建|精选10套三层户型图纸,占地面积均不足百平,尤其适合新农村修建
- 楼层|对于买房选楼层,一旦你忽视这5件小事,就只能买到“垃圾楼层”
- 住房公积金|什么才叫好户型?来看看这5个标准,你家房子符不符合?
