地气|这才是最接地气的装修,不豪华但很温馨,入住两年,依然简洁大方
见过不少的装修,室内很豪华,看一眼确实很高大上,但这种过度装修的家住久了不仅难打理,而且还有一种不太真实的感觉,真正的生活环境应该是接地气的,看上去就有家的样子。下面这对夫妻的家,我认为就是最为接地气的装修,室内不豪华但很温馨,入住两年后,空间依然是如此的简洁大方,要装修的朋友,可以学学。 
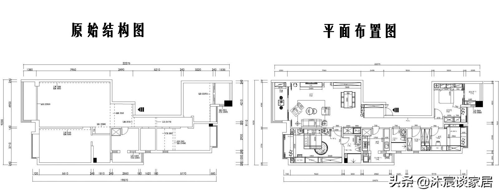
讲真的,我看到这套房子的原始户型图时,第一感觉就是很不好,厨房在中间,南北过道很狭长,中间还有一个大缺角。但装修就是如此神奇,在改造的时候可以把诸多不完美全给修饰掉。
改后的平面布置增加了一处玄关,保留了所有卧室供一家三口日常生活,下面就随我一起去看实景!
玄关
入户第一处就很接地气,不论是功能还是色彩搭配,都叫人很喜欢,酱色的大门也没有做任何的修饰,非常自然。 
“L”型的鞋柜靠近室内处并没有做宽,而是在边上增加一个通透的屏风,这样做非常赞,进门后不会感受到迎面而来的压抑感,而且让空气对流的同时,化解在大门处将室内看光的尴尬。
进来后就是客餐厅了,两厅连在一起选择统一的现代布置,我们分别来看具体细节。
客厅细节
为什么说这个家接地气?看到顶上的主灯就知道了。我们知道无主灯设计很火,特别是像这样一体的大空间,如果走上大平顶,那是相当大气。但这个有小孩的家庭,还是希望室内更为亮堂,方便调皮捣蛋的小朋友自由玩耍,当然还有辅助的灯光,两个背景有装有小射灯,可实现不同场景的切换,譬如等小朋友睡着了,两个大人就能坐在沙发上看看电视,灯光柔和温馨,十分美好。 
客厅面积不小,但选择的家具造型都很小巧,这样也是为了能腾出更多的地面出来,方便一家人互动,所以整个家通铺木地板,脚感很舒适。 
蓝色的皮质沙发深邃静谧,放在家里很是优雅,这是女主人最喜欢的款式。右边搭配着头等舱的按摩椅,男主人洗完澡后就会坐在这里放松片刻,还有左边的小单椅搭配着两个小茶几,这样的混搭,正是自己喜欢怎么来,提升了幸福感。
装修不需要过于刻板,就像上面提到的豪华装修,所挑选的家具一定会是全套的款式,如果放在家里只是为了好看,我更加喜欢像这对夫妻家的舒适度。
餐厅细节
玄关的背后就是餐厅,这里依然很简洁,功能很实用。融入一些自己喜爱的中式元素,让家的氛围更有格调。 
靠墙定制的大柜子可以藏下很多生活用品,这个家住了两年看着还是像新的,这个大柜子可帮了不上忙,里面可都是生活中必不可少的家居物品,用柜门挡起来,看不见里面的乱,而且更好清洁。 
这盏吊扇灯选择得很有生活气息,好看又实用,在不是太热的天气里,只要开启顶上的这个灯,会带来丝丝的凉意,比开客厅的空调更加节能省电,做到了生活上“节省”的优良品质。
推荐阅读
- 地板|160㎡四居室,玄关比我家卧室都大,这才是真正的低调奢华有内涵
- 亮点|等了6个月终于能晒晒新房了,都挺满意的,客厅是最大的亮点
- |中式庭院,这才是最让我们心动的院子
- 餐边柜|这才是咱们普通人的装修,真实又充满了烟火气,有房子真想照着抄
- |参观同事172㎡观景洋房,入户花园就抵个客厅,这才是豪宅呀
- 书桌|再见了传统榻榻米,这才叫小户型多功能儿童房,爸妈看了想照搬
- 五金件|8个装修中不值得花钱的地方,多花一分都是浪费,尤其是最后一个!
- 空间|你家再小,能比这间LOFT还小吗?这才是把空间开发到了极致
- 阳台上|这才是阳台该有的样子,别再把阳台只用于晾衣服,太浪费空间了!
- 卫生间|70㎡一居,把客厅当主卧,把主卧做儿童房,这才是真正的亲子宅
