茶室|100㎡三居室,没有电视墙,开放式茶室、餐厨一体化,让家更实用!
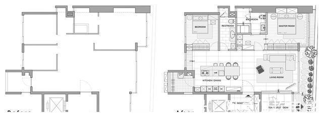
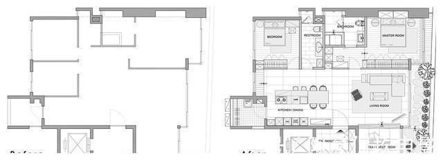
空间是生活的容器,这个容器如果能够呼应、合乎我们的作息方式、需求与愿望,生活便能真正安定安稳、舒适舒坦;同时,认真专注徜徉其中,有滋有味、自在自得。今天小编给大家带来一个看似非常简单的装修案例,全屋没有任何华丽的装饰,但却有很多值得我们学习和借鉴的设计理念和细节。话不多说,快跟随小编的步伐,一起来看看吧。【户型图】
本案例的户型为3房2厅2卫,室内面积约为99㎡,整体规划为开放式的餐厨区、客厅以及茶室,打造通透明亮的质感空间。<屋主需求>屋主要求至少有三个可以用来提供休息的空间。希望拥有开放式的厨房以及中岛台。拥有一个茶室。【客厅】
入户视角,在没有阻隔的开放空间中依然拥有不同的感受,亦能保有开阔的视野及自在游走之间的体验。
客厅,大面积的浅灰色墙面运用,艺术装饰画,极简小壁灯,每个细节都在诠释生活的简约美学。与墙面融为一体的隐形门通向主卧,一侧的凹位设计为内嵌式的展示区,视觉上平整了原始墙面结构,让整个空间更为流畅。
客厅取消了电视墙的传统做法,利用了落地架来放置电视机。开阔的布局在放大了整体视线范围的同时,保证了室外光线的充分照射,让窗外的景色不受到任何遮挡,打造舒适明亮的会客环境。【茶室】
茶室将地面抬高了25公分,同时用一段柚木形成明确的视觉分区。温暖的榻榻米设计,既可以在这里品茶、聊天,又可以作为一个临时的客卧,功能多样性。
茶室后面设计为悬空式的收纳柜,上半部分采取开放式的设计,兼具收纳与展示功能,下方设计为封闭式,用来放置较为凌乱的物品。【餐厅&厨房】
餐厨区围绕岛台和餐桌形成洄游动线,原木色的餐桌平衡了大面积白色带来的清冷感,从而打造一个舒适、流畅、会呼吸的空间。从这个角度可以看到窗户下面也做了一个地台的设计,侧面利用墙壁结构做内嵌式层架收纳,这是我们非常值得借鉴的一个地方,巧妙地将收纳融入到空间造型中,以层板架收整立面,从而达到实用性与美观性并存的效果。
中岛台是屋主一直想要的设计,再搭配两个工业风的高脚椅,瞬间成为休闲小吧台。吧台下面的开放格可以用来放置、展示收集的杯子器皿,补充收纳机能。【主卧】
主卧整体布置简洁、随性,细节搭配文艺范十足,生活在这样的空间里感觉很放松。运用木色和白色搭配,给空间一种素净清雅的感觉。
床头设计为嵌入式收纳柜和开放式的平台,增强了实用性。简洁的颜色搭配能让人的内心感到平和,素雅却不失单调,这份简洁变成了质感,成为构造空间高级感的条件之一。【次卧】
推荐阅读
- 屋主|56㎡小户型老房改造,小而美的设计!
- 现代风|168㎡现代风,带着浓郁的归属感与愉悦感
- 深色|155㎡简约风,承载着三代人的生活,不花哨让家务少一半
- 混淆感|146㎡北欧经典白色三居室,诠释令人心醉的优雅
- 饱和度|173㎡轻奢新中式,古典和现代的碰撞,唯美浪漫!
- 背景墙|97㎡现代风,以时尚打造空间,以新颖突出特点
- 地板|160㎡四居室,玄关比我家卧室都大,这才是真正的低调奢华有内涵
- 棚户区改造|开盘预告|合肥又有6盘要加推,均价1.39-2.54万/㎡全都有
- 小房间|参观140㎡大婚房,朋友都夸餐边柜有档次,我却更喜欢主卧的飘窗
- 房价|100万存款无房产和100万房子无存款相比,谁更幸福?
