主卧|63㎡清新简约风,一对医生夫妇的家,打造轻松无压感的避风港!
宇宙再庞大却始终不值得我们布置,唯独家值得我们漫游。将自己的喜好,一应俱全的换算成现实,然后沉浸于这片空间。你居住的地方决定了你是谁,你与自己的住所越息息想通,你的自我就越与它难分难舍。一个人选择居于何处绝不是偶然的,因为它反映了你内心的渴望。
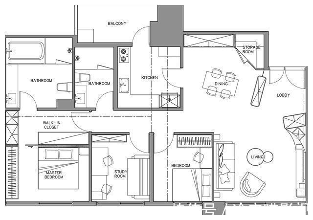
今天小编给大家分享一个现代简约风格的装修案例,屋主是一对医生夫妻,由于长期处在高压的工作环境中,所以希望一回到家就可以拥有完全放松身心的居家环境。最终设计师根据两人的喜欢与需求,模糊功能分区来扩大小平方的开阔感,以工业风线条糅合北欧清新色彩风格,打造静谧灰蓝色时尚住宅。01设计图纸/3房2厅2卫
本案例是个3房2厅2卫的小户型,室内面积为19坪,约为63㎡,目前只住着医生夫妻两人。<屋主需求>原始格局方面不进行更改,不敲墙。希望拥有干净利落的客餐厅。可以融合工业和北欧风格。02玄关设计
推门入室,大尺寸的蓝绿植物图案六角砖勾勒玄关区域,自然而然的将动线向室内延续,缓解了进门的局促感,营造出舒心、无压感的入户氛围。
进门后正对着的蓝色墙面奠定了整体的风格,木作的曲面设计也让家居氛围更加柔和随性,蓝色造型墙同时作为储物柜也增加了大容量的收纳空间。
右手边则规划为悬空的白色玄关柜,整体延续了圆弧的设计风格,同时运用了金属元素打造时尚感。悬空柜体以及玻璃的运用,也减轻了家具的体量感,轻松打造通透无压感的空间。03客厅设计
客厅的电视背景墙便采用了工业风,水泥质感墙面只需加上两条金属线,时尚高级感马上就凸显了出来。再搭配同色系的窗帘和地板,兼具整体感与设计感,非常值得我们借鉴。

客厅的天花板也采用了半弧形的设计,让整体的功能分区流畅且随性。北欧风的家具造型虽然看起来比较简单,但是通过不同线条的造型,可以让简单的家有不同的变化。绿植的装点让整个空间充满自然气息。04餐厅设计
客厅规划了一个斜面的灰蓝色储物柜,增加储物的同时也可以减轻直角造型带来的锐利感。餐边柜选择了简单大方的白色,中间留空区域墙面采用了和玄关风格一致的花砖,增添空间表情。

选定纯净的北欧风格为主视觉,运用极度简约的线条为笔,描绘一片静谧的中性色彩基底,搭配清新简约的家具与绿意植栽,重划出机能充裕的两厅格局,让家不用大,也能拥有十分包容理想的宁静生活。05主卧设计
为了避免浴室的湿气进去主卧,设计是将入门后的这段狭长的过渡区域规划为一个简单的衣帽间,利用它来分隔主卧和浴室,推开雾面玻璃滑门,就可以进入主卧。
推荐阅读
- 屋主|56㎡小户型老房改造,小而美的设计!
- 现代风|168㎡现代风,带着浓郁的归属感与愉悦感
- 深色|155㎡简约风,承载着三代人的生活,不花哨让家务少一半
- 混淆感|146㎡北欧经典白色三居室,诠释令人心醉的优雅
- 饱和度|173㎡轻奢新中式,古典和现代的碰撞,唯美浪漫!
- 背景墙|97㎡现代风,以时尚打造空间,以新颖突出特点
- 地板|160㎡四居室,玄关比我家卧室都大,这才是真正的低调奢华有内涵
- 棚户区改造|开盘预告|合肥又有6盘要加推,均价1.39-2.54万/㎡全都有
- 小房间|参观140㎡大婚房,朋友都夸餐边柜有档次,我却更喜欢主卧的飘窗
- |73㎡复古风两居室,年轻夫妻的高品质生活
