电视柜|她家70㎡,看似简单,却透着艺术家的精致范,小空间的变身术!
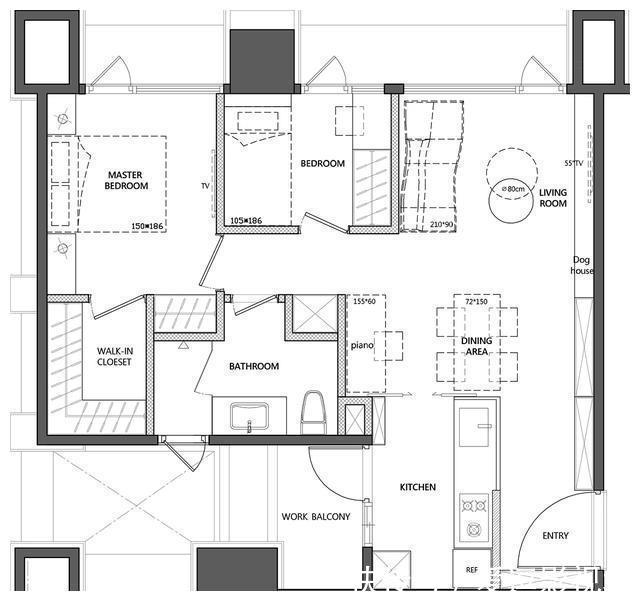
我们在找什么呢?奔波在外,想要回归家庭,静静等着食物香气随着油烟机一缕缕飘出来,身边有家人正在说着话。每个人都有不同的答案,每个时期都有不同的定义,不需要必须、确定,顺其自然,聆听,心的声音。今天小编给大家分享的是一个小户型的装修案例。屋主要在套内面积56㎡里创造出两室两厅,同时客厅要摆放下钢琴,主卧要有步入式衣柜。那么,设计师是如何巧妙地规划布局,满足屋主所有需求的呢。话不多说,快跟随小编的步伐,一起来看看吧。01设计图纸
本案例户型2房2厅1卫,室内面积约为56.1㎡,居住人数2大1小1狗。<用户需求>屋主希望厨房有开放式的宽敞明亮感,同时解决油烟问题。拥有充裕且不压迫的收纳空间。希望可以放大客餐厅的空间感。02玄关设计
推门入室,墙面上挂着屋主最喜欢的奈良美智的画作,清新柔雅的气息随之而来。一个由玄关柜层面延伸过来的木质层板架,可作为展示区,亦可防止进门的包包、钥匙等物品。
进门左手边的玄关柜采用白色无把手设计,可与墙体融为一体,减轻其存在感,对于小户型来讲是非常经典的手法。在电视墙的一侧,玄关与电视柜的连续中,加入一面长型明镜,除了可以作为了仪容镜以外,还从视觉上进行了功能分区,同时其虚实映射的效果,也减轻了狭窄玄关走廊的压迫感。03客厅设计
从玄关望向客厅,设计师从屋主喜爱的艺术家奈良美智的作品中提取色彩方案,玄关和客厅的天花板、窗帘以及电视柜开放格都选择了柔静的水蓝色,打造独特的清新范。小户型一般来讲,墙面和家具都会大面积的使用浅色系,为了避免室内整体感觉过于“轻浮”,地板的颜色上就可以选择较深的颜色,比如本案例中的胡桃木色系,可以让整体看起来不那么轻盈无序。
客厅的电视柜中部穿插了一个水蓝色的开放格,这样的设计打破了大面积白色带来的单调感。其次,蓝色开放格向左突出的设计手法,也让空间有了别样的层次感,是非常值得借鉴的小技巧。

沙发背景墙上挂着定制的奈良美智滑板造型壁灯,增添鲜活、年轻的生活气息。同时,为了缓解次卧的封闭感,在背墙位置开了一面玻璃窗,让室内光线可以自由地流动。04餐厨设计
本案例设计的亮点便是餐厨区和钢琴区,通过走廊自然地将客厅和餐厨区界分,将钢琴区的墙面铺贴上胡桃木色实木贴皮,可以起到凝集视觉的作用,利用色彩反差来推展空间深度,非常值得借鉴。
屋主非常喜欢烹饪,希望厨房可以有宽敞的操作台面以及不拥挤的视觉感受。因此设计师将一部分墙面改为茶色玻璃框架墙,既可以解决油烟问题,又保有了通透的视线,一举多得。

推荐阅读
- 屋主|56㎡小户型老房改造,小而美的设计!
- 现代风|168㎡现代风,带着浓郁的归属感与愉悦感
- 深色|155㎡简约风,承载着三代人的生活,不花哨让家务少一半
- 混淆感|146㎡北欧经典白色三居室,诠释令人心醉的优雅
- 饱和度|173㎡轻奢新中式,古典和现代的碰撞,唯美浪漫!
- 背景墙|97㎡现代风,以时尚打造空间,以新颖突出特点
- 地板|160㎡四居室,玄关比我家卧室都大,这才是真正的低调奢华有内涵
- 棚户区改造|开盘预告|合肥又有6盘要加推,均价1.39-2.54万/㎡全都有
- 小房间|参观140㎡大婚房,朋友都夸餐边柜有档次,我却更喜欢主卧的飘窗
- 她家148平米,进门就被玄关迷住,不做吊顶跟背景墙,阳台超漂亮
