厨房|她家66㎡老房翻新,不做吊顶和造型,只刷乳胶漆,成本低又耐看!
房子又老有小有什么关系?只要好好装修改造,完工后就能收获一个好看又实用的家!本期屋主正是如此,手上有一套房龄超15年的老房子,面积约66㎡。原户型为一室一厅,无法满足三口之家的居住需求,于是屋主决定对其进行“大刀阔斧”的改造。
▲装修实拍图//设计亮点//这套房子的户型还算方正,最大的优点是层高有4米左右,可以分割出夹层空间。在保证结构安全的前提下,设计师对户型做了如下改造:①拆除屋内部分非承重墙体,保证室内采光和通风性;②厨房上方做钢架结构,分割出二楼卧室空间;③二楼走廊用书柜代替隔墙,提升空间利用率。
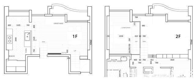
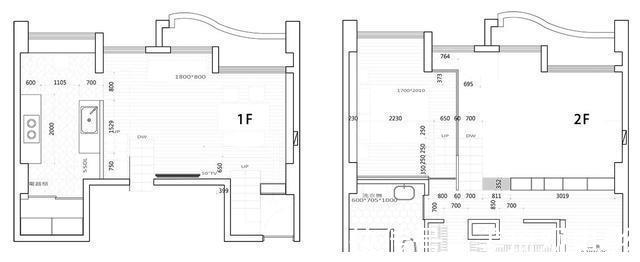
▲装修平面图■客厅■进屋正对的是一体式客餐厅,平时屋主用餐或招待朋友,都会在这个区域。屋主上学的时候,就特别喜欢图书馆的感觉,所以她也想把这部分灵感,融入到生活里去。俯瞰客餐厅,一楼的长餐桌、绿植和二楼的柜格书架,还真有点图书馆的感觉,也算实现了她的一个小梦想。
▲客厅实拍图客餐厅区域做了挑高处理,无论从层高还是采光上来说,都占据了很大的优势。屋主喜欢简约的装修风格,所以整个客餐厅以“大白墙 原木地板”为基调,内部摆放必需的家具和家电,其余部分均做“留白处理”。在净高4米的衬托下,客餐厅呈现出一种质朴典雅的感觉,非常耐看。
▲客厅实拍图客厅落地窗设置了纯白色的百叶帘,质地轻盈温醇,契合整屋极简的装修风格。电视柜用黑色与棕色的柜格进行组合搭配,结合日式收纳盒,方便收纳生活杂物。而且电视柜的材质比较轻,平时屋主如果需要挪动位置,一个人就可以搞定。
▲客厅实拍图■厨房■厨房与客餐厅之间,用水泥砌了一个“半隔断”,既可以从视觉上划分空间,又能充当吧台的功能。水泥吧台的高度适中,不会影响厨房内部采光,上面可以摆放一些调料或装饰品,散发出回归自然的独特气息。
▲厨房实拍图厨房与二楼卧室之间的隔板,采用了钢架结构,从厨房内能够清晰地看到“钢管 木地板”,给人一种返璞归真的感觉。设计师仔细考量了厨房的格局,根据屋主的需求,将橱柜划分为了“双一字型”结构,中间留出足够的空间,以减少拥挤感。
▲厨房实拍图因为厨房的高度有限,所以设计师只做了橱柜,没有做吊柜,以免造成压抑感。橱柜采用“不锈钢 原木”两种材质进行组合,通过不锈钢的硬朗和木质的温润形成强烈的对比,呈现出非常有质感的生活气息。
▲厨房实拍图橱柜内拥有充足的收纳空间,可以轻松放下厨房家电、锅具和食材等,释放台面“压力”,保证屋内整洁干净。
▲厨房实拍图■书房■考虑到屋主有居家办公的需求,于是设计师在厨房一角,规划了办公桌。简洁的桌面隔板直接悬空固定在墙壁上,下面放一个小小的柜格书架,搭配窗户上的置物隔板,美观又实用。
推荐阅读
- 屋主|56㎡小户型老房改造,小而美的设计!
- 现代风|168㎡现代风,带着浓郁的归属感与愉悦感
- 深色|155㎡简约风,承载着三代人的生活,不花哨让家务少一半
- 混淆感|146㎡北欧经典白色三居室,诠释令人心醉的优雅
- 饱和度|173㎡轻奢新中式,古典和现代的碰撞,唯美浪漫!
- 背景墙|97㎡现代风,以时尚打造空间,以新颖突出特点
- 厨房|一居室也能如此精彩,展现单身人士的高端生活,享受生活的乐趣
- 地板|160㎡四居室,玄关比我家卧室都大,这才是真正的低调奢华有内涵
- 棚户区改造|开盘预告|合肥又有6盘要加推,均价1.39-2.54万/㎡全都有
- 小房间|参观140㎡大婚房,朋友都夸餐边柜有档次,我却更喜欢主卧的飘窗
