钢琴|极简是一种生活态度
夫妻二人工作忙碌,希望自己的家便捷好打理,预留出更多的生活空间,简洁明了的极简风应运而生。家里有两个活泼可爱的男孩,给他们提供一个简洁而舒适的成长环境,公共区域给精力充沛的兄弟俩尽量预留出玩耍活动的空间。
「屋主需求」?四口之家(两个帅气的崽崽)?无主灯设计?需要U型橱柜/独立钢琴房(女屋主是钢琴老师)/足够多的衣柜?干净简约又具温度感的空间氛围
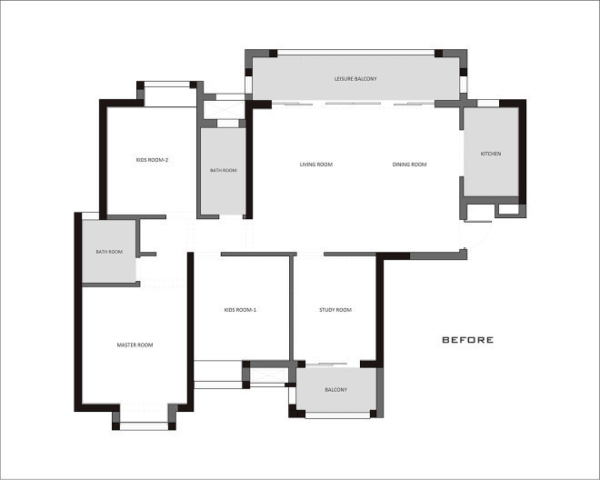
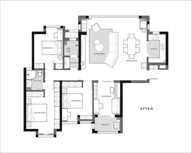
「格局调整」?北面阳台并入客餐厅区域?利用儿童房的空调外机位?改变两个儿童房的进门位置(格局风水师建议)?调整主卧室门洞,增加衣物收纳空间「功能布局」?冰箱放置于餐厅区域,不影响厨房设置U型橱柜?打造书房、休息区、钢琴房为一体的多功能区域?鞋柜室内外分区放置
打通阳台,增强客餐厅的视觉延伸。在阳台横梁中加入细窄线条,打破生硬的块面感。
木纹色料定板背景墙带来素雅朴实的质感,电视线路隐藏在岩板台面内,维持立面的简约利落感。
大尺寸的皮革沙发宣誓稳稳地份量感,其拐角设置靠近过道,为了不影响进门到餐厅的动线。精心挑选的细脚圆形茶几,棕色单椅等移动便利的家具,供孩子奔跑游玩时即时调整摆放。
餐厅与客厅的联动关系。
落地窗旁的储物柜与梁柱齐平,同时与左侧的黑色层柜在视觉上产生平衡感。
储物柜选择白色的柜门,与承重梁形成平面,虚化梁柱在空间的存在。
定制的黑色风口与其他黑色部分融为一体。
吊顶与背景墙中的线性修饰,为宽阔的空间注入一脉相承的韵律感。
另一端的白色阳台柜与进入屋内的木色鞋柜均衡视觉重量,丰富了横向的空间层次。极简的线性吊灯软性界定客餐厅,空间主要以暗藏式筒灯保证基本照明,射灯营造家具氛围。
真皮沙发与细腻的布料在质感的色彩上形成对比,更凸显整体格调。
简洁不光是形式上的,更在搭配上。沙发家具尽量选择与硬装同色系,在整体的状态下增加一些弱对比,整体而又不失层次。
搭配高级灰橙色单椅点缀其中。
餐厅紧邻客厅一展而开,整体运用灰色的柔抛地砖,呈现透亮清新光感。
将阳台空间自然纳入进客餐厅,增大了客餐厅的视觉感受,阳光从一侧完整的洒了进来。
推荐阅读
- 春节|如果能重来,阳台一定“9不装”,并非迷信,是过来人的经验教训
- 住宅|现在买房,选“高层”还是“低层”好专家20年后差别很大
- 小钱|游点好笑!收手机的新方式,一抓一个准!这老师怕是柯南看多了?
- 家具|家具展厅30余万红木家具被盗,嫌疑人竟是高学历海外留学生
- 楼市|房子降价对楼市而言反倒是件好事
- 宝龙地产|银行大厦几十层高,能“物尽其用”吗?各个楼层都是干啥的?
- |“最惨购房者”相关话题登热搜榜首,到底是怎么一回事?
- 地板|160㎡四居室,玄关比我家卧室都大,这才是真正的低调奢华有内涵
- 装修|空调外机万万不能这样挂墙,若不是师傅提醒,我家都装错了!
- 烂尾楼|水泥电线杆是如何制造的?里面的钢索有什么用?今天算明白了!
