玄关|56㎡小宅,两房变三房,半平米不浪费,一家四口人住太舒服了!
在城市里打拼了6年,这对90后夫妻,终于攒够钱买了一套56㎡的房子,虽然面积很小,但只要一家四口人住在一起,依然可以其乐融融。本期,甜茶为大家分享的家装案例,是一套面积约56㎡的小宅。屋主一家四口,夫妻二人和两个孩子,对装修的基本述求是:整体居住简约舒适,希望孩子们都能够拥有各自独立的空间。
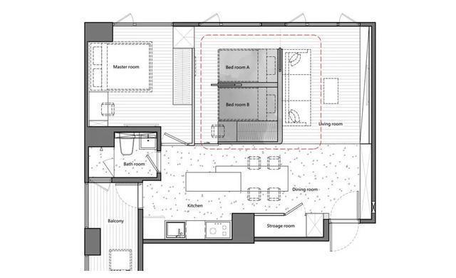
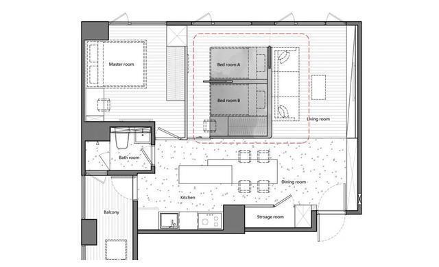
▲装修实拍图//设计亮点//原始户型还算方正,属于两居室,但想要满足屋主的需求,就必须再做一间卧室。于是,设计师对户型进行了如下调整:①全屋以灰白为色调,极致简约,提升整体空间感;②减少室内主灯,用筒灯、射灯和灯带来替代,光源更丰富;③次卧一分为二,中间做推拉门,实现女儿房和男孩房;④屋内隔断之间,增加“圆窗”,为暗室引入自然光。
▲装修平面图||玄关做抽拉式换鞋凳,节省入户空间因为户型面积很小,所以设计师在提升空间利用率上,真的花了不少心思。以玄关为例,设计师专门增加了抽拉式换鞋凳的设置,不用的时候可以隐藏在墙内,节省入户空间。
▲玄关实拍图内嵌式玄关柜,无柜门把手,轻轻按压即可打开,完美地和墙面融为一体,给人一种整洁大气的感觉。玄关区域的轨道射灯,与客厅的直接相连,一排大约有6个灯头,可根据需求调整位置,减少室内光线死角。
▲玄关实拍图||客厅多以圆弧收边,视觉感更加柔美走进客厅,你会感到一种柔和之美,主要归功于室内色彩与线条。灰白色的主色调,与纯白色相比,少了一份单调,多了一份气质,尤其是当自然光照进屋内时,整个空间会看起来舒适又明亮。
▲客厅实拍图不同于大部分家装案例中的“棱角分明”,设计师用圆弧线条对墙面和柜子进行收边,视觉感更加温润。对于有孩子的家庭来说,圆弧线条的设计也非常值得借鉴,平时孩子在家玩耍,也会不容易磕碰一些。
▲客厅实拍图设计师在客厅与女儿房之间的隔断上,开了一扇“圆窗”,有效解决卧室无采光的缺陷。当女儿晚上睡觉时,可以把“圆窗”关闭,保证屋内的私密性。之所以选择“圆窗”,也是为了与客厅的圆弧线条相呼应,优雅又柔美。
▲客厅实拍图从女儿房的“圆窗”望向客厅,看到的景象也颇为有趣,好似一个大型的万花筒。简单的圆形,营造出了不同的层次感,同时也增加了两个空间的互动性。
▲客厅实拍图||一体开放式餐厨,美味无需等待厨房和餐厅在同一个空间内,四人位餐桌紧挨着中岛,从视觉上延伸了整体空间。
▲餐厅实拍图餐厅内也是随处可见圆弧线条,比如餐厅的工业风吊灯、餐边柜的推拉门造型等,带来了视觉上的错落有致。
▲餐厅实拍图厨房为一字型结构,烹饪动线流畅“洗切炒”一气呵成,。
推荐阅读
- 屋主|56㎡小户型老房改造,小而美的设计!
- 现代风|168㎡现代风,带着浓郁的归属感与愉悦感
- 深色|155㎡简约风,承载着三代人的生活,不花哨让家务少一半
- 混淆感|146㎡北欧经典白色三居室,诠释令人心醉的优雅
- 饱和度|173㎡轻奢新中式,古典和现代的碰撞,唯美浪漫!
- 背景墙|97㎡现代风,以时尚打造空间,以新颖突出特点
- 地板|160㎡四居室,玄关比我家卧室都大,这才是真正的低调奢华有内涵
- 棚户区改造|开盘预告|合肥又有6盘要加推,均价1.39-2.54万/㎡全都有
- 小房间|参观140㎡大婚房,朋友都夸餐边柜有档次,我却更喜欢主卧的飘窗
- 她家148平米,进门就被玄关迷住,不做吊顶跟背景墙,阳台超漂亮
