小户型|如果你家是小户型,这套装修值得参考,卧室设计得真好,实用舒适
好的设计,除了要帮屋主实现基本的使用需求之外,还需要考量屋主的居住体验与感受,并尽可能地展现出美感与情致来。本期分享的这套小户型装修案例,就将这三点结合得特别好。虽然全屋面积不大,但该有的功能一样都不少,装修效果更给人耳目一新的感觉,第一眼看到就相当地惊艳,设计亮点上也有不少,最吸引我的就是它卧室区域的设计,对于有小户型需要装修的亲来说,这套装修很值得参考!不信随我一起去感受一下吧!
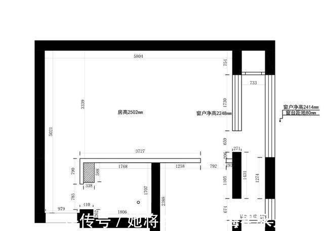
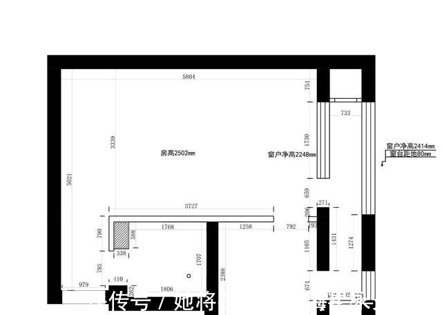
原始户型图
平面布置图
先来介绍一下这套房子的基本情况。这是一套38平米的小户型公寓,原始户型中已经规划好了厨房和卫生间的位置,而其他的功能区就需要屋主自行划分。考虑到屋主单身,平时的生活比较简单,除了上下班之外,其他时间都喜欢窝在家里看电视、看书或是打游戏,对活动空间比较注重,而对卧室和厨房这些地方的要求就不是特别高,只要能睡觉、能做简单的饭菜就好,所以,设计师对原型作了以下调整:
1,将厨房的隔墙拆除,将它改成开放式的厨餐厅;
2,调整卫生间的门洞位置,原来的门洞则封起来做嵌入式鞋柜;
3,将原来的大开间,分成客厅与卧室两部分,客厅与阳台之间的玻璃墙则拆掉用来摆放书桌;
4,将原来的长阳台一分为二,两边各定制两组储物柜,极大地扩展了储物区。
通过这一系列的规划调整,一个“五脏俱全”的新格局就出来了,且看设计师是如何装扮它的吧!
玄关
玄关
首先来看玄关区,玄关左侧配有衣帽架和全身镜,右侧配有嵌在卫生间墙体里的鞋柜,而正对面的这面墙,便是卧室的背墙了。可以看到墙上开有一个孔洞,上面摆着一个插着绿植的花瓶,与白墙和周围的木格栅结合在一起,一进门,就感觉禅意深深,特别雅致有韵味。
卧室
卧室
卧室里面是一张床柜一体的榻榻米床,外面则用三面木格栅围封,再加上墙上的孔洞,人睡在里面,透气透光都没问题,舒适性非常不错。
全景效果
全景效果
这是客厅与卧室的全景效果,可以看到卧室这边的木格栅即便是关着的,室内也很通透,而大厅被卧室占掉一大块空间后,室内也不显得局促,无论实用性与舒适性,都兼顾到了。
家居细节
家居细节
从家居细节上看的话,这套装修的美观性也丝毫不差,甚至还给人一种空灵佛系的感觉,非常惊艳!
推荐阅读
- 屋主|56㎡小户型老房改造,小而美的设计!
- 春节|如果能重来,阳台一定“9不装”,并非迷信,是过来人的经验教训
- 小钱|游点好笑!收手机的新方式,一抓一个准!这老师怕是柯南看多了?
- 公示|一处体育中心项目、一处小型口袋公园!市北两项目规划公示,配套升级
- 碧桂园|小城市的房住不炒,遇上返乡置业
- 小户型|发现丈夫赠人房产 妻子怒讨买房款
- 小房间|参观140㎡大婚房,朋友都夸餐边柜有档次,我却更喜欢主卧的飘窗
- 卫生间|什么才叫好户型?来看看这5个标准,你家房子符不符合?
- 修建|精选10套三层户型图纸,占地面积均不足百平,尤其适合新农村修建
- 楼层|对于买房选楼层,一旦你忽视这5件小事,就只能买到“垃圾楼层”
