极简|89㎡极简三居室,宽敞又舒适,全屋收纳堪称典范,值得借鉴!
三口之家,四季幸福,我想这大概就是家的意义。本期,甜茶为大家分享的这套89㎡的三居室位于中国台湾省,是屋主夫妇的首套房,一家三口同住。平时,两个人工作非常繁忙,所以他们希望回到家的时光是温馨而又放松的,更重要的是屋内要有足够的空间来陪伴孩子成长。
▲装修实拍图//设计亮点//①全屋以奶油白为主色调,配色温柔耐看;②客厅做“玻璃门 百叶门”,采光极佳;③开放式餐厨空间,用餐方便快捷;②储物空间丰富,全屋超10处收纳柜。
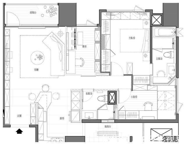
▲装修平面图客厅阳光充沛,颇具自然格调客厅与开放式阳台相连,拥有一整面墙的采光面,为公共区域带来充沛自然光。为了不影响室内的光线效果,屋主做了“百叶 玻璃”两层推拉门,轻盈通透,为屋内带来轻快舒适的氛围。
▲客厅实拍图电视柜为倒U型结构,与玄关柜无缝相连,中间预留出电视机的位置,简洁大气。
▲客厅实拍图L型奶油灰色的大沙发,尺寸很大,一家人坐在这里空间非常充裕。黑色线条的工业风钓鱼灯,与极简圆形茶几,为客厅空间增添了一份设计感。
▲客厅实拍图一体式餐厨空间,用餐更方便其实,餐厅的空间非常小,而且并不算是真正意义上的餐厅,而是由橱柜台面延伸出来的。也就是说,餐桌其实是橱柜的一角,搭配三张高脚椅,正好满足一家三口的用餐需求。
▲餐厨实拍图橱柜和吊柜,做了L型设计,动线合理、收纳空间充足。而厨房的另一侧空间,则规划做家电区,嵌入了冰箱、烤箱和洗碗机等,既整洁又节省空间,日常使用起来也非常方便。
▲餐厨实拍图主卧收纳空间丰富,体量惊人主卧是夫妻二人的休憩空间,配色以“白色 咖啡色”为主,给人一种舒缓放松的感觉。床头两侧,分别摆放了两盏台灯,作为室内主灯的补充,可营造浪漫舒适的居家氛围。
▲主卧实拍图这个房间看似不大,但是屋内收纳能力却非常强。屋主砸掉室内原本的飘窗,改做飘窗柜,兼具“休闲 储物”两个功能。像生活中的一些不常用的杂物,屋主都会直接放进飘窗柜里,有效保证屋内的干净整洁。
▲主卧实拍图床尾处做了满墙白色衣柜,中间镂空可嵌入电视机。衣柜采用无拉手式设计,外型美观大气,轻轻按压柜门即可打开,使用体验感更好。
▲主卧实拍图儿童房做榻榻米设计,最大化空间利用率儿童房的设计,是目前比较流行的榻榻米结构,“床 衣柜 书桌”一应俱全,让孩子能够拥有一个独立休息、学习和放松的空间。
▲儿童房实拍图床的下方,有一部分收纳空间,采用了抽屉的设计,拿取物品会更加方便。床尾墙壁上做了三层壁龛,用来摆放图书、手办等,也能起到点缀空间的作用。
推荐阅读
- 屋主|56㎡小户型老房改造,小而美的设计!
- 现代风|168㎡现代风,带着浓郁的归属感与愉悦感
- 深色|155㎡简约风,承载着三代人的生活,不花哨让家务少一半
- 混淆感|146㎡北欧经典白色三居室,诠释令人心醉的优雅
- 饱和度|173㎡轻奢新中式,古典和现代的碰撞,唯美浪漫!
- 背景墙|97㎡现代风,以时尚打造空间,以新颖突出特点
- 地板|160㎡四居室,玄关比我家卧室都大,这才是真正的低调奢华有内涵
- 卫生间|129平现代美式三居室,打造出一个舒适又温馨的美式家
- 三居室|118平现代风三居室,一个简单而纯粹还原生活色彩的家
- 棚户区改造|开盘预告|合肥又有6盘要加推,均价1.39-2.54万/㎡全都有
