卫生间|64㎡轻奢两居室,柜子设计是最大亮点,颜值高又好用,值得借鉴!
导语:64㎡做成两居室,宽敞通透,而且收纳规划堪称满分,每一个柜子都能给你十足的惊喜!小户型的屋主们还在等啥?赶快进来抄作业!本期,甜茶为大家分享的家装案例,面积约64㎡,是一套轻奢风的两居室。全屋格局通透、收纳能力强,每一个空间的柜子都符合该区域的功能设定,不仅颜值极高,而且使用起来非常方便。
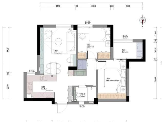
//设计亮点//①打通客厅、阳台两个区域,提升整体空间感;②U型开放式厨房设计,烹饪动线流畅合理;③卫生间洗手台外移,干湿合理分区;④生活阳台做清洗区,洗衣、晾晒一步到位。
▲装修平面图从走进入户玄关的那一刻起,我们已经能够感受到这个户型的收纳能力了。设计师在入户门的右侧,做了满墙的嵌入式玄关柜,涵盖了以下几个主要功能:鞋柜、挂包区、收纳柜、换鞋凳等。
▲玄关实拍图打开鞋柜门,可以看到内部安装了旋转式鞋架,不仅能提升使用空间,而且拿取鞋子也会更加方便。在鞋柜门上,设计师还贴心地安装了穿衣镜,方便屋主出门前整理仪容。柜子的下方,做了10公分的留空处理,用来放置常穿的鞋子和扫地机器人等。
▲玄关实拍图从玄关到客厅的位置,设计师做了一个小的拐角隔断,既能用来摆放一些装饰品,还能起到保护室内隐私的作用。
▲玄关与隔断实拍图厨房采用了U型开方式结构,空间宽敞,且动线合理。靠近餐厅的部分,是西厨吧台的设计,提升了空间的互动性。西厨直连餐厅,橱柜上方水管的部分,设计师用木板进行装饰,看起来也比较协调。
▲厨房实拍图厨房的配色选择了经典的黑白灰,白色的柜子与黑色的家电,再搭配灰色的地砖,给人一种清爽高级的视觉感。中厨内的台面,采用了高低台的设计,符合人体工学原理,使用起来更加舒适方便。
▲厨房实拍图餐厅的面积比较小,只简单地摆放了一张四人位餐桌,足够一家三口使用。设计师借助餐桌后方的墙面,做了整墙餐边柜,白色的柜体与墙体相协调,无缝连接客厅的电视背景墙,整体感更强。
▲餐厅实拍图客厅的设计现代感十足,简洁大气,且散发着艺术气息。整体色调以“白色 原木色”为主,局部点缀宝石蓝色的沙发,与脏粉色的拼色背景墙形成完美的对比色,高级感满满。
▲客厅实拍图设计师用满墙电视柜代替电视背景墙,简洁干练,既好看又实用。电视柜的中间做镂空设计,正好放入电视机,插座也做了隐藏式设计,看起来更加整洁。电视柜和餐边柜中间,做了开放式展示柜,用来摆放装饰品,提升室内空间的精致感。
▲客厅实拍图在软装的选择上,设计师尽量以色彩鲜明、体积较小的家具为主。浅粉色的单人沙发、墨绿色的圆茶几和宝蓝色的双人位沙发,为室内增加了一份色彩层次感。屋主可以根据需求,随意变换家具的位置,丰富生活的趣味性。
推荐阅读
- 屋主|56㎡小户型老房改造,小而美的设计!
- 现代风|168㎡现代风,带着浓郁的归属感与愉悦感
- 深色|155㎡简约风,承载着三代人的生活,不花哨让家务少一半
- 混淆感|146㎡北欧经典白色三居室,诠释令人心醉的优雅
- 饱和度|173㎡轻奢新中式,古典和现代的碰撞,唯美浪漫!
- 背景墙|97㎡现代风,以时尚打造空间,以新颖突出特点
- 地板|160㎡四居室,玄关比我家卧室都大,这才是真正的低调奢华有内涵
- 卫生间|129平现代美式三居室,打造出一个舒适又温馨的美式家
- 棚户区改造|开盘预告|合肥又有6盘要加推,均价1.39-2.54万/㎡全都有
- 收纳|去邻居家参观才知道,卫生间不装柜子这样设计,防潮耐脏好清洁
